Commercial for rent - Rue Docteur-Alfred-Vincent 5, 1201 Genève
Why you'll love this property
Spacious, 401 m²
City center, near station
Ideal for medical practice
Arrange a visit
Book a visit today!
Professional surface of 401 m2
This building is ideally located in the city center on the right bank, 9 minutes walk from Cornavin station and a stone's throw from the lake, in a very quiet street. A beautiful entrance welcomes you!
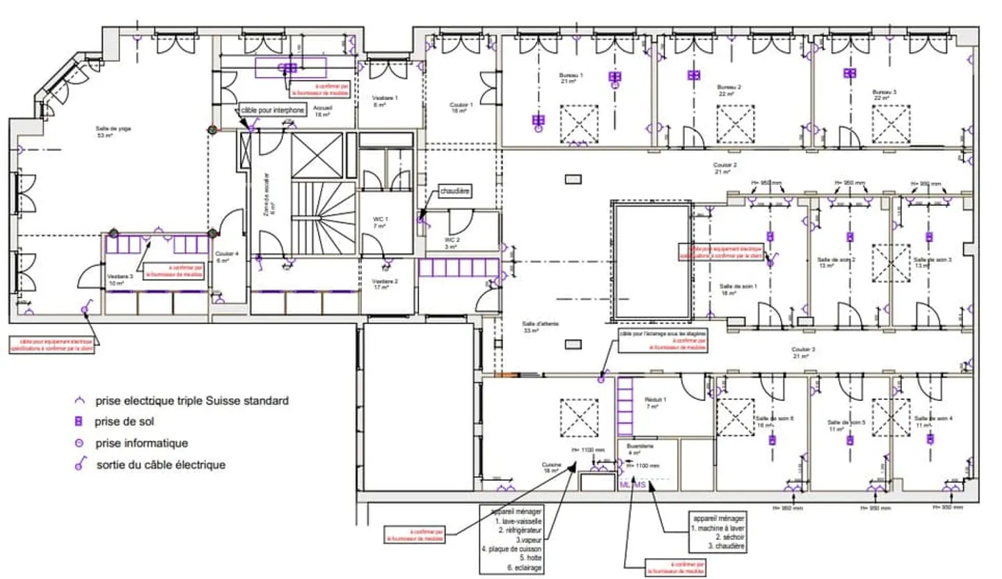
We offer you on the 1st floor, a professional surface that constitutes the entire landing, ideal for a medical activity or beauty institute thanks to its water points, it can accommodate any activity.
This property is arranged as follows:
- reception area
- waiting area
- 9 rooms of which 3 are equip...
Costs breakdown
- Net rent
- CHF 13’301
- Additional costs
- CHF 1
- Total rent
- CHF 13’301
Property details
- Available from
- By agreement
- Living surface
- 401 m²
- Usable surface
- 401 m²



