Industrial property for rent - Rue Des Sablières 4, 1242 Satigny
Why you'll love this property
Flexible office layouts
High ceilings for production
20 parking spaces available
Arrange a visit
Book a visit with Picque today!
Spaces for Production and Offices for Rent in Satigny
Equipped rooms
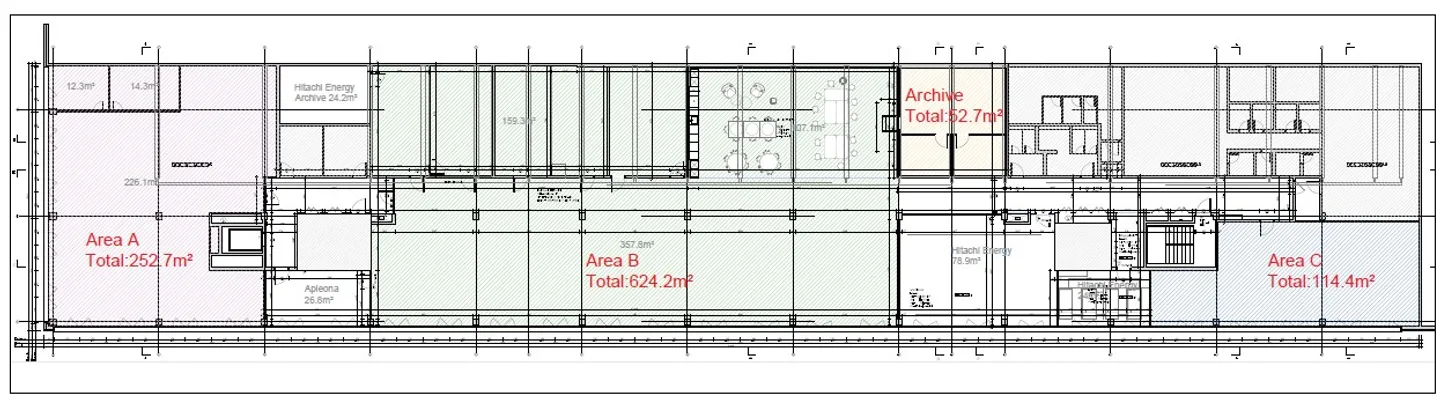
991 m2 of office space, divisible from 267 m2
755 m2 of production and storage space
Elevator/loading lift
Sanitary blocks with showers
1 loading lift (maximum load 1,600kg) and 2 loading lifts (maximum load 3,200kg)
Payload: 1 ton
Height on the ground floor: 7m
Sprinkler system
Fire alarm system
20 parking spaces (CHF 2,400.-/unit/year)
Availability by arrangement
Rent: from CHF 180/m2/year
Property details
- Available from
- By agreement
- Living surface
- 1745 m²
- Usable surface
- 1745 m²

