1 / 10

Industrial property for rent - Rue Des Sablières 4, 1242 Satigny

755 m²
CHF 11’325.-
CHF 180 m² / year

Why you'll love this property

Flexible office layouts

High ceilings for production

Parking available on-site

Arrange a visit

Book a visit today!

CBRE Genève
This description has been automatically translated from French.

Production and office spaces for rent in satigny

Fitted premises

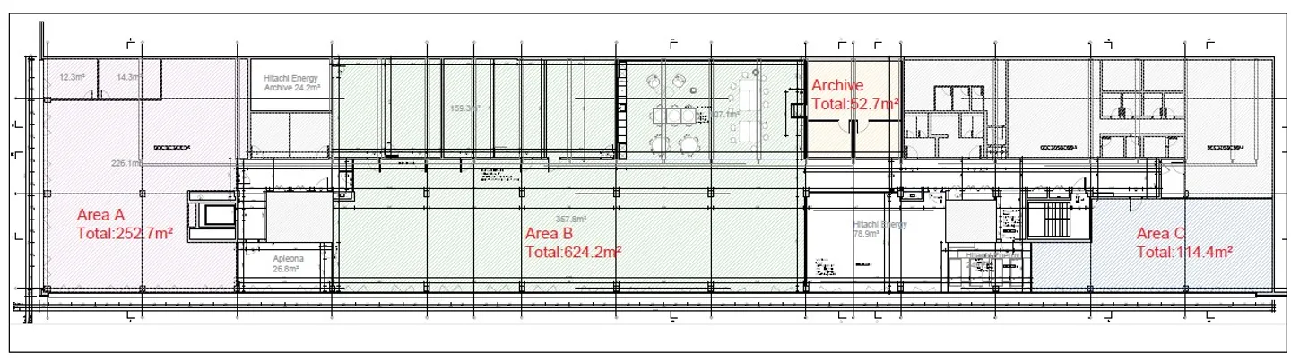
991 m2 of divisible offices as follows: 252.7 m2, 624.2 m2, 114.4 m2

755 m2 of production/storage spaces

Elevator/Lift

Sanitary blocks with showers

1 freight elevator (maximum load 1,600kg) and 2 lifts (maximum load 3,200kg)

Cranes on the ground floor

Useful load: 1 ton

Height on the ground floor: 7m

Sprinkler

Fire detection

20 parking spaces (CHF 2,400.-/unit/year)

Availability after agreement

Rent: from CHF 180/m2/year

Property details

Available from
By agreement
Living surface
755

Agency

CBRE Genève
Ref: 53009.849802
Online since
15/10/2025
12 hours ago

Location

Rue Des Sablières 4, 1242 Satigny

Sources