Office space for rent - Boulevard De L'arc-En-Ciel 36, 1030 Bussigny
Why you'll love this property
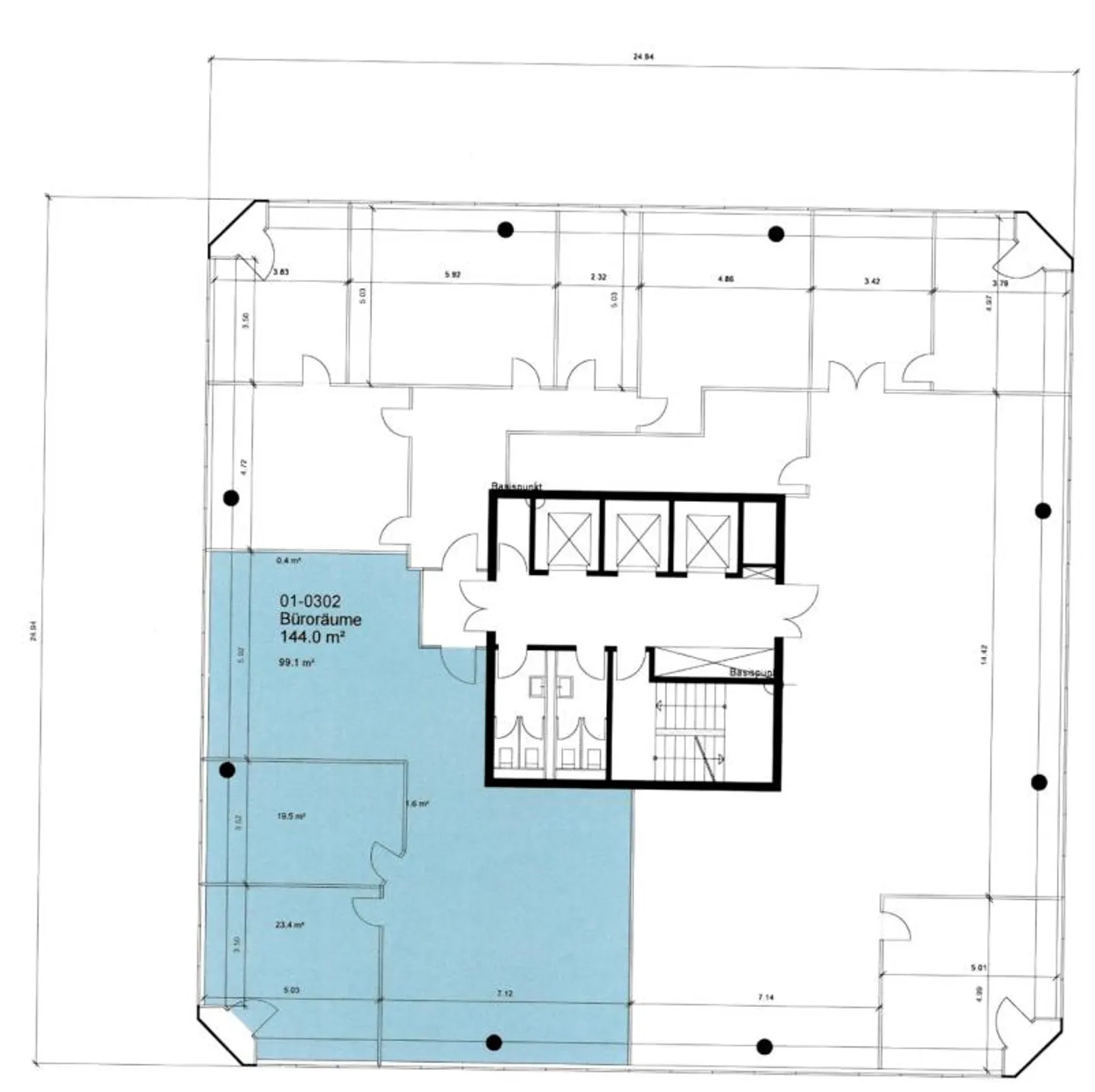
Bright and flexible layout
3 elevators for easy access
Ample parking available
Arrange a visit
Book a visit with du today!
Last furnished office immediately available 144 m2, many parking spaces...
Last fully furnished office, immediately available in this building.
Location of the premises:
- In the heart of the Commercial Zone: Migros, Coop, McDonald's, Fust, Grand Optical, etc.
- Only 1 minute from the highway for directions to Geneva, Bern, Fribourg, Martigny
- 10/15 minutes from downtown Lausanne (car/bus)
- 5 minutes from Renens and Bussigny train stations
- Bus lines 17 and 92 1 minute walk away
Description:
In a beautiful administrative building, we offer you the last office for rent immed...
Property details
- Available from
- By agreement



