Medical practice for rent - Rue De Romont / Romontgasse 35, 1700 Fribourg
Why you'll love this property
Spacious 137m2 office
Equipped kitchen included
Balcony with city views
Arrange a visit
Book a visit today!
Office for rent in downtown fribourg!
We offer you a surface of approximately 137m2, in the city center of Fribourg close to all amenities, opposite the Manor shopping center and a stone's throw from the train station.
This property is designated for the operation of administrative offices exclusively and can be arranged according to the tenant's preferences.
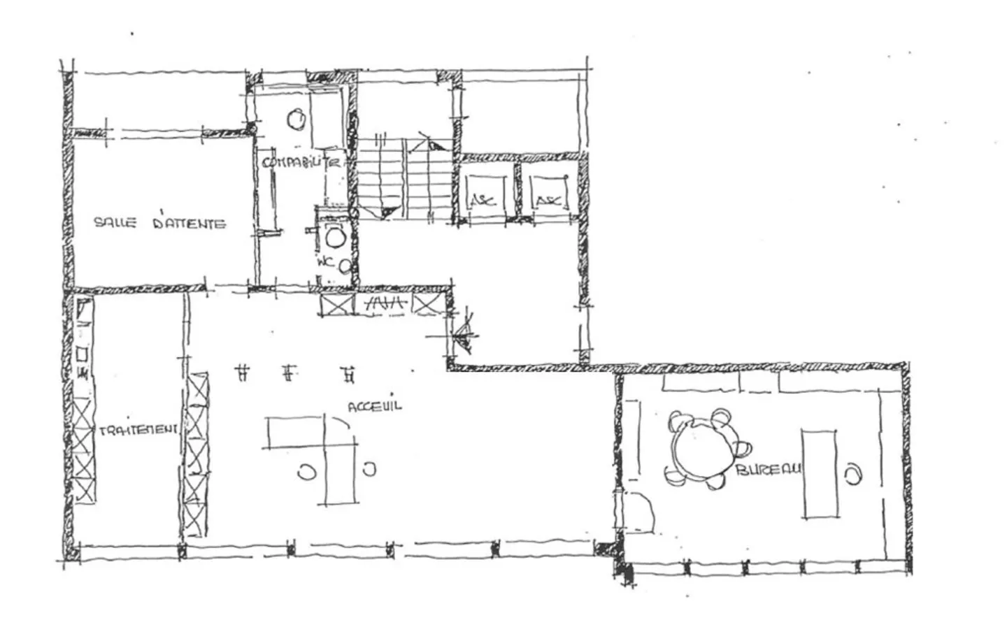
The surface consists of the following:
- entrance hall with wall cabinets and main area (reception)
- office
- equipped kitchen
- waiting room
- WC
- storage room
- balcony
Numerous park...
Costs breakdown
- Net rent
- CHF 3’470
- Additional costs
- CHF 175
- Total rent
- CHF 3’470
Property details
- Available from
- 01.10.2026
- Living surface
- 137 m²



