Office space for rent - Bernstrasse 34, 3072 Ostermundigen
Why you'll love this property
Flexible office layouts
Bright spaces with views
Central location near transport
Arrange a visit
Book a visit with Tamò today!
Partial area or rather alone? Office / commercial space directly at "Pu...
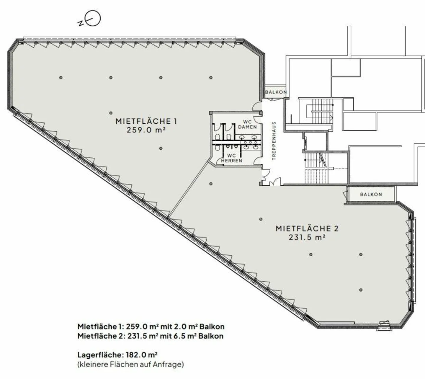
At Bernstrasse 34 in Ostermundigen, two attractive office spaces are available for rent on the 3rd floor. The spaces are suitable for SMEs, administrations, agencies, or creative concepts and can be rented individually or together.
The 2023 renovated commercial building offers bright rooms, flexible floor plans, and an individual tenant expansion in shell construction. The rental period can start immediately.
Highlights at a glance
- Total rental area: 490 m²
- or as partial area: 231 m² and 259 m² ...
Property details
- Available from
- By agreement


