Office space for rent - Soodring 33, 8134 Adliswil
Why you'll love this property
Two meeting rooms
Bright rooms with views
Access to rooftop terrace
Arrange a visit
Book a visit with Selene today!
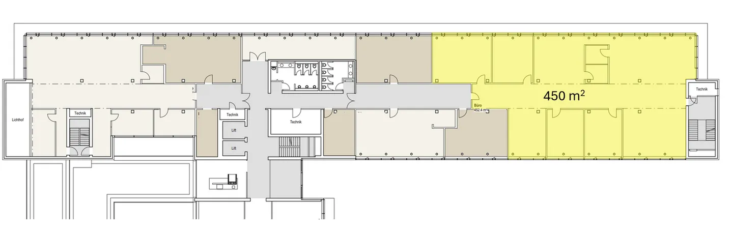
450 m² High-quality developed and ready-to-move-in office space
The office space has been specifically developed to provide companies with modern requirements an efficient and representative working environment.
Only 500 meters from the Sood Oberleimbach train station (15 minutes to Zurich HB) and directly at the motorway entrance, our business building <> is centrally located, modern, and easily accessible. On the 3rd floor, you will find a ready-to-move-in, high-quality developed office space of approximately 450 m².
What to expect:
* Two meeting rooms ...
Property details
- Available from
- By agreement
- Construction year
- 2001
- Renovation year
- 2025
- Living surface
- 450 m²
- Usable surface
- 450 m²



