Medical practice for rent - Teufenerstrasse 32, 9042 Speicher
Why you'll love this property
Large windows for visibility
High customer foot traffic
Sustainable building features
Arrange a visit
Book a visit with GEMAG today!
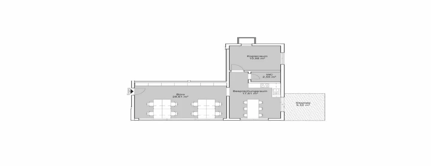
Newly built commercial space with great visibility
Take the opportunity to establish your practice, retail space, or office in a prime location! This modern rental commercial space on the ground floor impresses with large windows facing Teufenerstrasse, providing excellent visibility and plenty of natural light.
The property is located on a major traffic axis between Teufen and Speicher, ensuring high customer frequency. A parking space is also available, making access easier for your customers and employees.
The space is newly and high-quality fi...
Costs breakdown
- Net rent
- CHF 1’440
- Additional costs
- CHF 140
- Total rent
- CHF 1’440
Property details
- Available from
- By agreement



