Office space for rent - Industriestrasse 31, 8305 Dietlikon
Why you'll love this property
Lift access available
Private office rooms
Customer parking included
Arrange a visit
Book a visit with maison.work today!
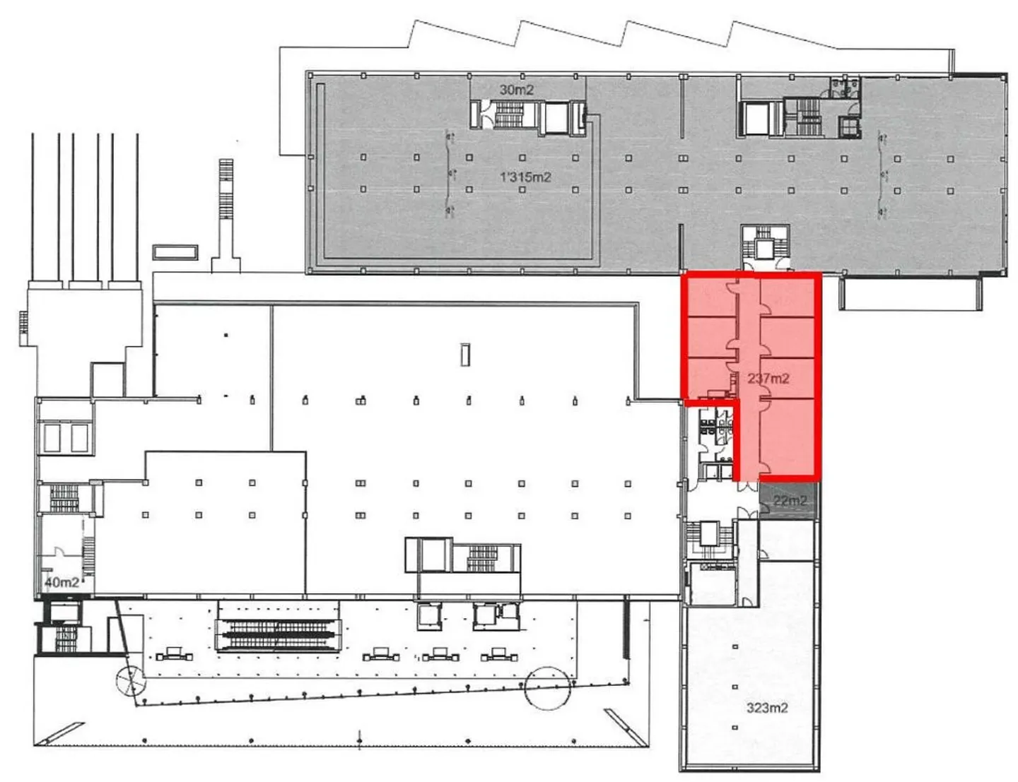
GREENHOUSE - Office spaces with individual expansion standards
We are renting these attractive office spaces in a well-connected location in the middle of Dietlikon.
The area offers you the following advantages:
- Access via staircase or elevator
- Closed office rooms
- Coffee kitchen
- Storage or additional office space can be rented
- Customer parking spaces
For further questions or to arrange a viewing appointment, please do not hesitate to call us.
Costs breakdown
- Net rent
- CHF 3’951
- Additional costs
- CHF 593
- Total rent
- CHF 3’951
Property details
- Available from
- By agreement
- Renovation year
- 2010
- Living surface
- 237 m²
- Usable surface
- 237 m²



