Commercial for rent - Industriestrasse 30, 4542 Luterbach
Why you'll love this property
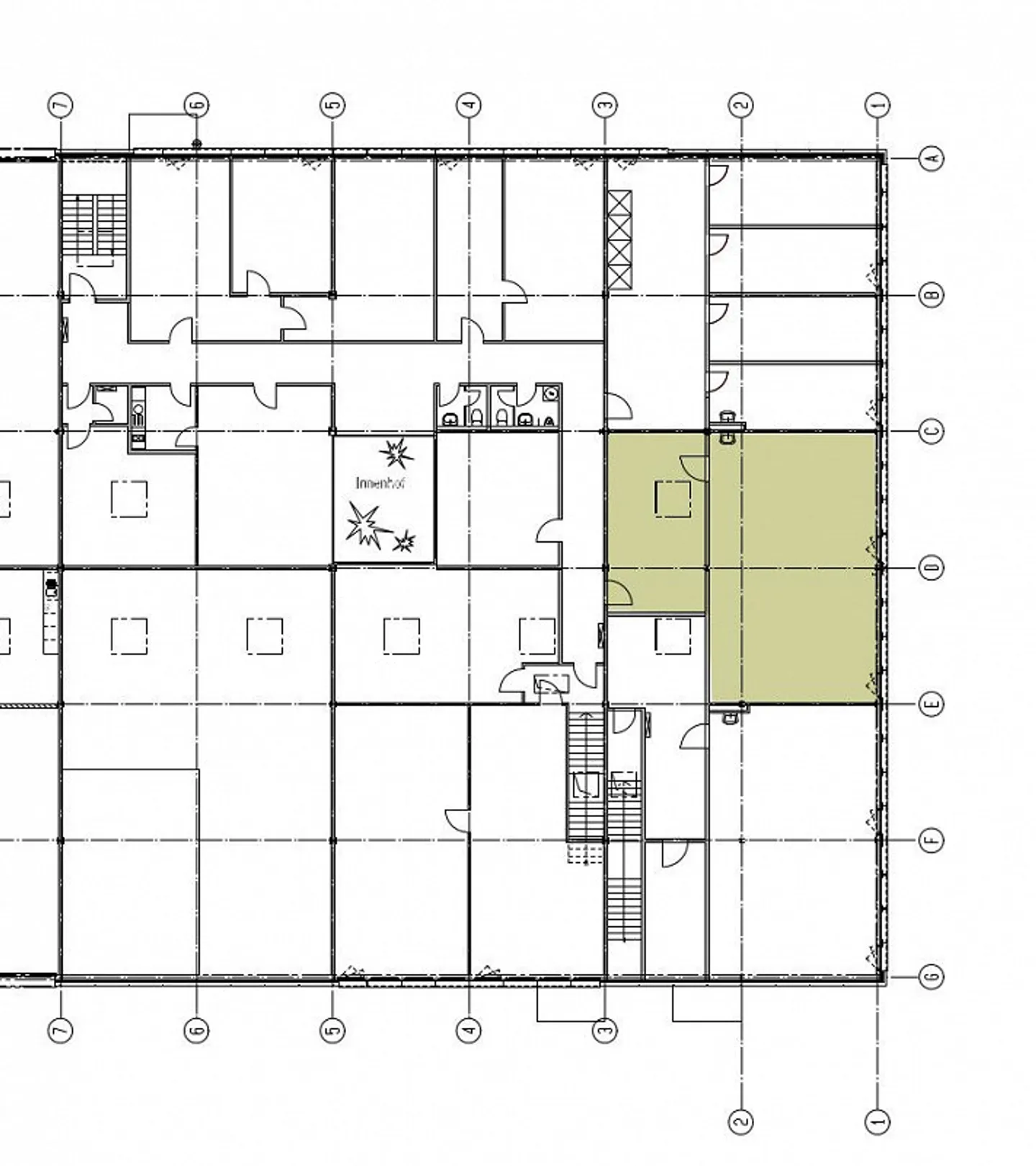
Ready-to-use office space
Access to meeting room
5 min to A5 and A1
Arrange a visit
Book a visit with Stefan today!
Space for office or training room - flexible office spaces
The building is located in the commercial zone in a favorable traffic location.
The A5 and A1 connections can be reached in 5 minutes by car. The train connections are on the main axis Romanshorn-Genève. You can expect a versatile range of usage variants and possibilities.
Your advantages at a glance
Ready-to-move-in, fully developed commercial spaceShared use of meeting room and kitchenetteGood price/performance ratioMotorway connection A5 and A1 reachable in 5 minutes by car
Offer
1st floorUsable a...
Property details
- Available from
- By agreement
- Construction year
- 2000



