Shop for rent - Falknerstrasse 26, 4001 Basel
Why you'll love this property
Bright, visible storefront
Two connected floors
Large windows for advertising
Arrange a visit
Book a visit with BeVe today!
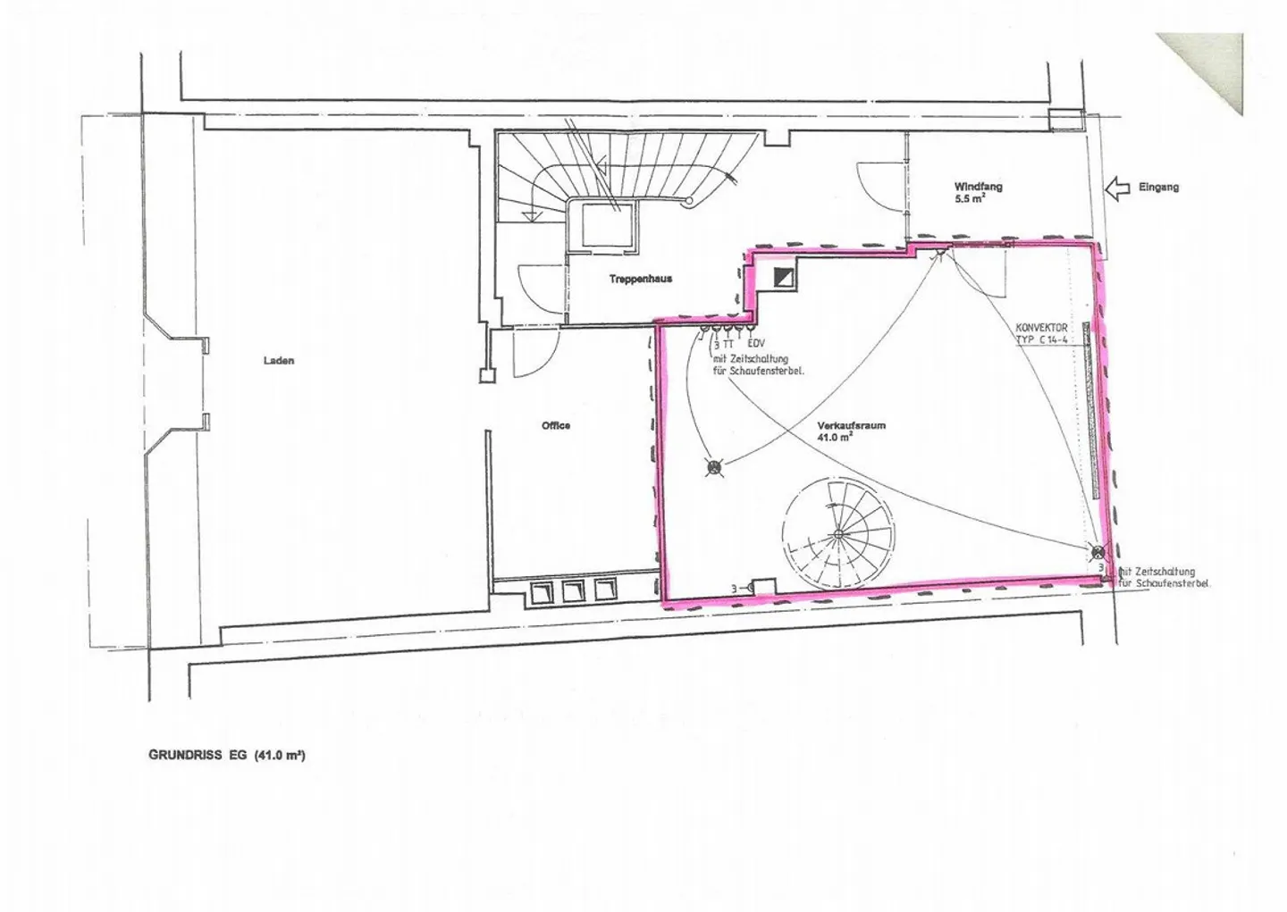
For rent: Attractive retail space in the center of Basel – Falknerstrasse
In the heart of Basel's city center, we are renting a bright, well-visible retail space on two floors.
The retail space (41m2) features a large shop window on Falknerstrasse. The premises are connected internally by a spiral staircase over two floors.
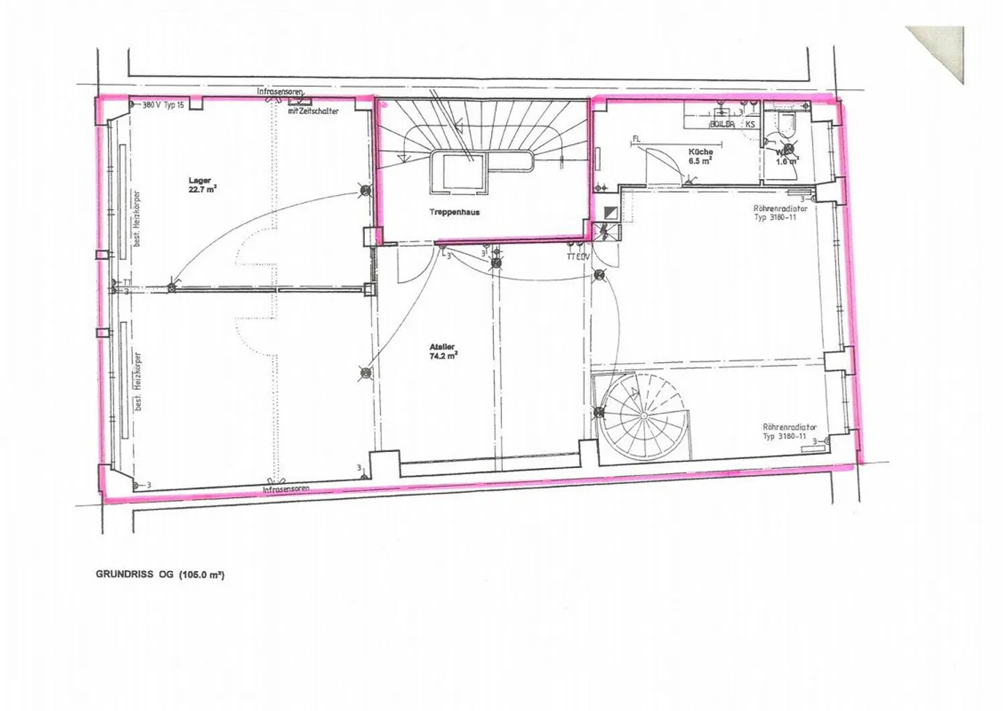
The upper floor (105m2) is additionally accessible from the stairwell and extends from Falknerstrasse to Gerbergasse. It offers large window and advertising areas throughout, a kitchenette, and a restroom.
We look forward to your contact.
Costs breakdown
- Net rent
- CHF 6’320
- Additional costs
- CHF 320
- Total rent
- CHF 6’320
Property details
- Available from
- 01.06.2026
- Construction year
- 1899
- Living surface
- 146 m²
- Usable surface
- 146 m²



