1 / 6

Office space for rent - Konstanzerstrasse 23, 8280 Kreuzlingen

Ground floor
CHF 1’300
-

Why you'll love this property

Central location on Konstanzerstrasse

Versatile space for various uses

Bright and welcoming atmosphere

Arrange a visit

Book a visit with Gschwind today!

Gschwind
immokanzlei AG
This description has been automatically translated from German.

Work, grow, take off - commercial spaces for every idea

Office spaces

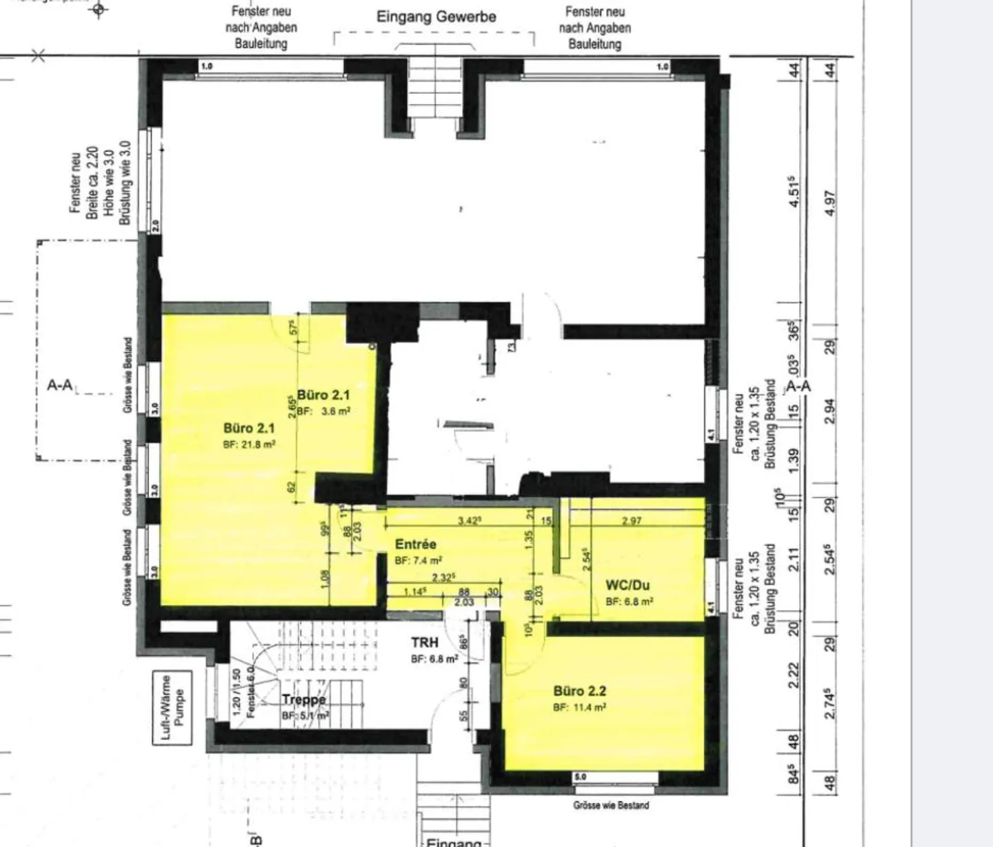
These bright office spaces with two rooms right in the heart of Kreuzlingen on the busy Konstanzerstrasse are the ideal location for your business. With a total of 46 m², the rooms offer the perfect size, spacious enough to let your ideas and your team unfold, while being compact and efficient for a representative and well-utilized appearance.

The layout is well thought out: a separate toilet with shower. The main area is excellent as a modern office, consulting space, or practice, f...

Costs breakdown

Net rent
CHF 1’300
Additional costs
CHF 50
Total rent
CHF 1’300

Property details

Available from
By agreement

Agency

immokanzlei AG
Address:Kreuzlingen, Rheinstrasse, 8280
Ref: Büro 2.1 & 2.2 / WC / DU.a50acb28-afd5-11f0-89d7-069ae14c7a06
Online since
23/10/2025
9 hours ago

Location

Konstanzerstrasse 23, 8280 Kreuzlingen

Sources