Office space for rent - Vereinshausstrasse 22, 4133 Pratteln
Why you'll love this property
Versatile usage options
High-quality parquet floors
Flexible rental agreements
Arrange a visit
Book a visit today!
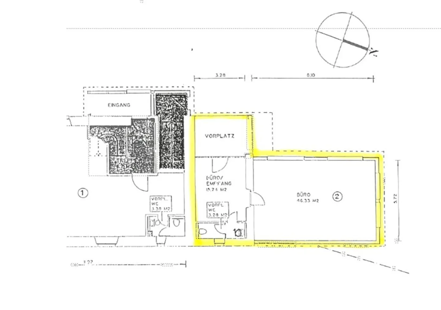
Commercial space in the village center of pratteln
In an attractive central location, we are renting a room that allows for diverse uses. The property is located in a carefully renovated old building.
As tenants, we can imagine the following industries: Consulting / Trade / Sales / Studio / Practice or Handicraft
Good for business
- CHF 208.-- / m2 p.a. net
- flexibly organizable
- very quiet
- highway connection nearby
- floors in high-quality parquet
Your advantages with Regimo Business
- individual rental price and contract models
- advice and support ...
Costs breakdown
- Net rent
- CHF 1’410
- Additional costs
- CHF 210
- Total rent
- CHF 1’410
Property details
- Available from
- 01.01.1970
- Construction year
- 1872
- Living surface
- 69 m²




