Commercial for rent - Rue Du Bourg 2, 3960 Sierre
Why you'll love this property
Bright corner location
Spacious basement storage
Automatic entrance doors
Arrange a visit
Book a visit today!
Arcade
FOR RENT in Sierre? COMMERCIAL SPACE WITH CHARACTER ON 2 FLOORS + BASEMENT
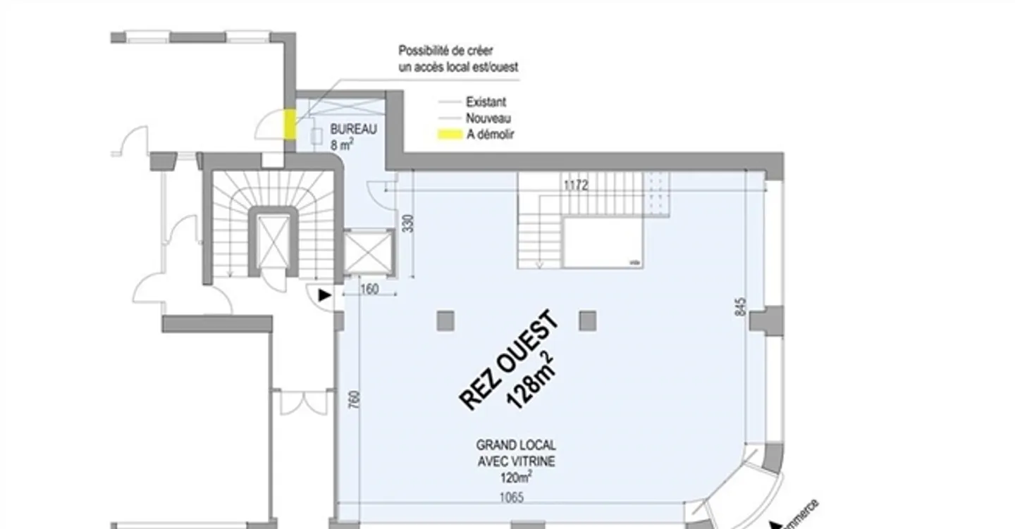
Located at the corner of a building on Rue du Bourg, this bright and cross-ventilated space benefits from new windows on two facades, ensuring optimal visibility on a very busy axis, just steps from the Sierre train station.
Property features:
? 2 floors of 128 m² each (total: 256 m²)
? Spacious basement of 170 m² (storage, archives, workshops, etc.)
? Great visibility thanks to completely redone corner windows
? Automati...
Property details
- Available from
- By agreement



