Office space for rent - Jöchlerweg 2, 6340 Baar
Why you'll love this property
Flexible interior design options
Spacious 3m high ceilings
Excellent public transport access
Arrange a visit
Book a visit with Andreas today!
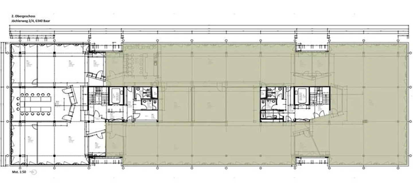
Versatile office spaces in baar - flexible interior design possible
At Jöchlerweg 2 in Baar, an office space of 962m² is available for rent on the 2nd floor.
The existing layout as an open office allows for a completely flexible interior design with new floors and room divisions - free according to your ideas.
The generous room heights of 3 meters combined with the light-flooded rooms create an open and inspiring working environment. The rental area is accessible via two staircases, each equipped with a passenger/goods lift.
The motorway entrance can be reached in ...
Property details
- Available from
- By agreement
- Construction year
- 1994



