Commercial for rent - Sternengasse 19, 4051 Basel
Why you'll love this property
High visibility storefront
Flexible usage options
Convenient access and delivery
Arrange a visit
Book a visit with Irene today!
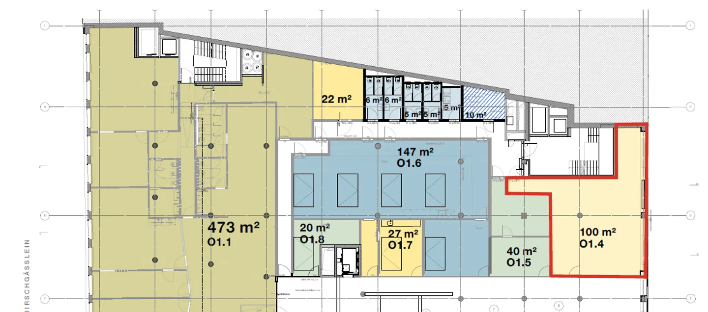
Attractive commercial space with shop window front in a central location
In an attractive, central location in downtown Basel, we are renting a high-quality developed commercial space of approximately 100 m².
The space impresses with its high-quality finish and additionally offers a floor-to-ceiling shop window front facing Sternengasse, which ensures excellent visibility and a bright, inviting appearance.
The premises are ideally suited for various uses, such as:
* Sales and showroom concepts
* Practices and health services
* Cosmetic, wellness, or massage services
* Offi...
Property details
- Available from
- By agreement
- Living surface
- 100 m²




