Office space for rent - Sonnenbergstrasse 19, 6052 Hergiswil NW
Why you'll love this property
Bright room with large windows
Cozy carpet flooring
Ideal for startups or branches
Arrange a visit
Book a visit with Claudio today!
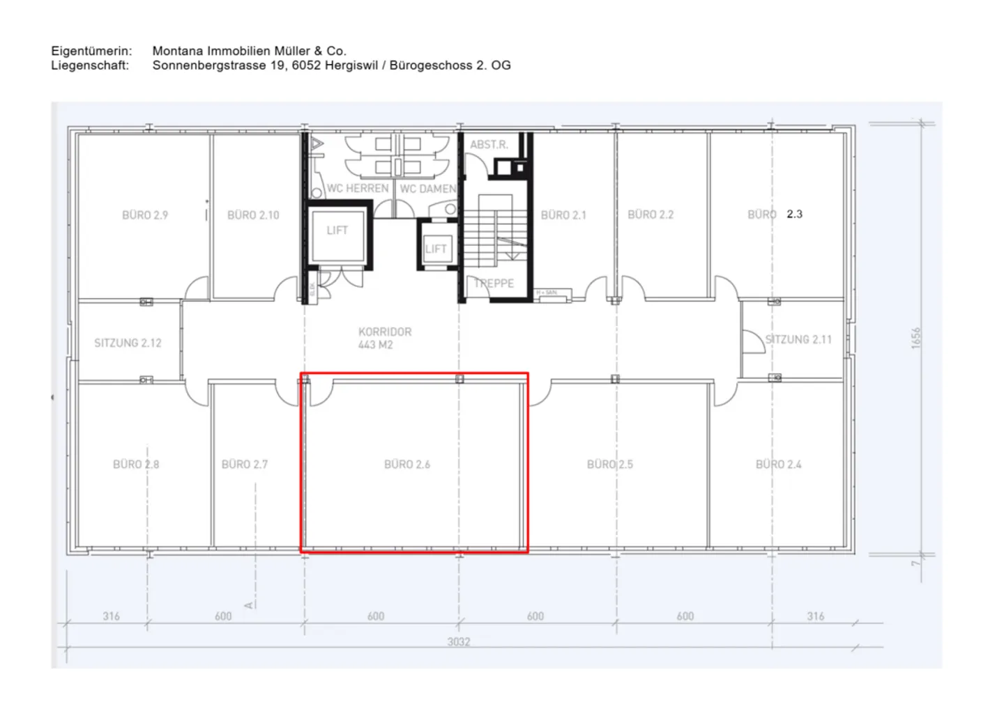
Office Space (64 m²) 2nd Floor
Office space (64 m²) 2nd floor
The attractive business location Hergiswil is excellently located in terms of transport and also benefits from a favorable tax policy. The municipality is a central traffic hub of Central Switzerland. Thanks to its own motorway connection, the city of Lucerne can be reached in just 10 minutes by car. The connection to public transport is also optimal, making Hergiswil equally attractive for companies and private individuals.
In the commercial building at Sonnenbergst...
Costs breakdown
- Net rent
- CHF 1’060
- Additional costs
- CHF 150
- Total rent
- CHF 1’210
Property details
- Available from
- By agreement
- Rooms
- 1
- Living surface
- 64 m²




