Workshop for rent - Route Des Avouillons 17a, 1196 Gland
Why you'll love this property
Modern building design
Shared kitchenette access
Quick access to transport
Arrange a visit
Book a visit with Alan today!
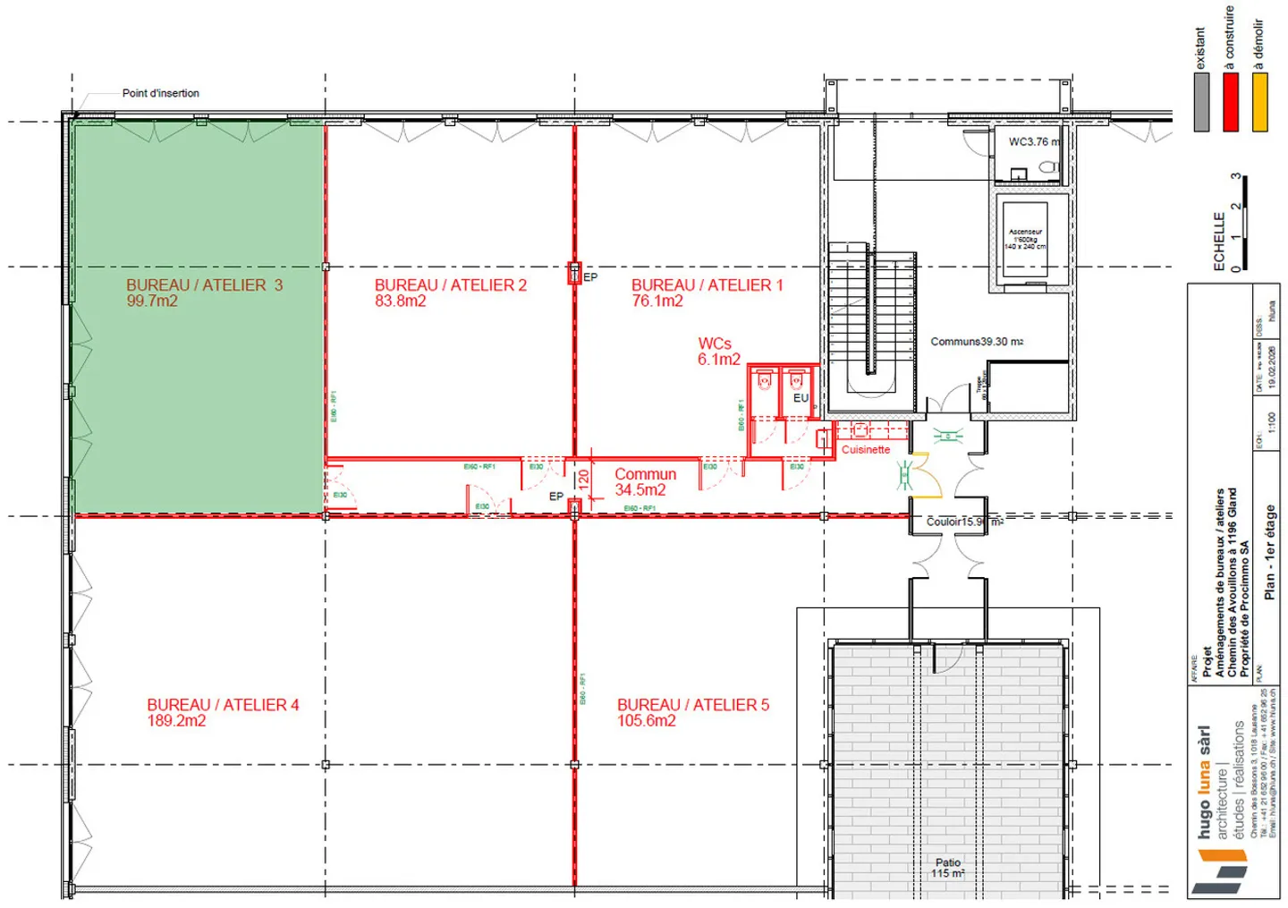
SPARK - 76.1 m2 - Plug & Play Workshop in Gland
Designed to meet the needs of businesses and freelancers looking for a functional and flexible space, this 76.1 m² Plug & Play workshop offers a practical and professional working environment.
Located in a modern building, the space allows for quick installation and great flexibility in use, ideal for light craft, creative, or office activities.
The toilets and kitchenette are shared, providing practical comfort for the building's users.
This workshop is an ideal solution to develop your act...
Property details
- Available from
- By agreement
- Construction year
- 2024
- Living surface
- 76 m²
- Usable surface
- 76 m²



