1 / 14

Industrial property for rent - Wegenstrasse 16, 9436 Balgach

4316 m² Plot • Ground floor
Price on request
-

Why you'll love this property

Ideal for office and production

Multiple parking spaces available

Flexible rental options offered

Arrange a visit

Book a visit with Marcon today!

Marcon
This description has been automatically translated from German.

Commercial building in wegen

Attractive office and production spaces for rent in Balgach

Address: Wegenstrasse 14, 16 and 16a, 9436 Balgach

Availability: from March 1, 2026 or by arrangement

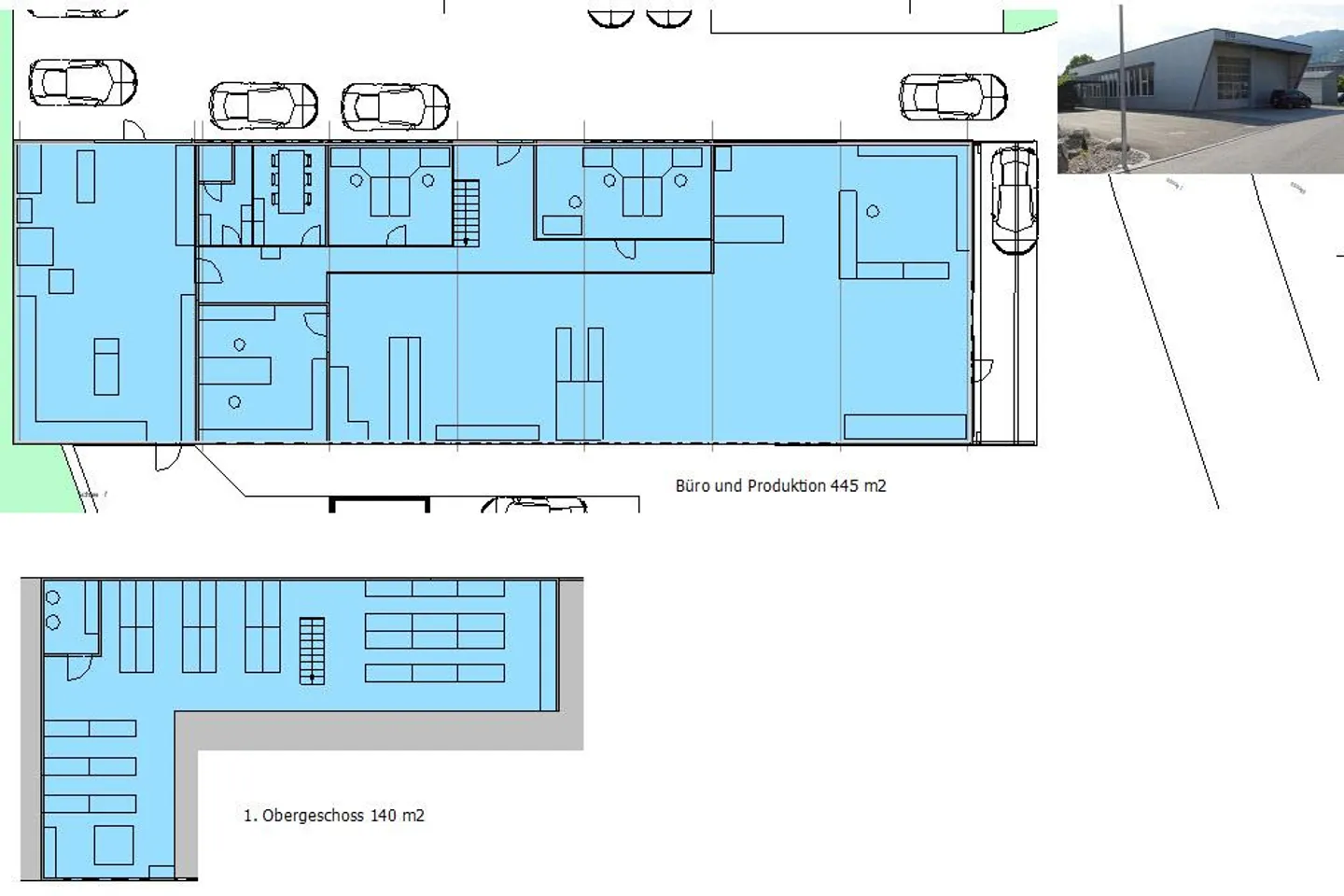
Total area: 1,342 m² (buildings can also be rented individually)

Property description

In a central location in Balgach, we are renting three commercial buildings with versatile usage options. The spaces are ideal for office, production, storage, and services. Each building can be rented individually or in combination.

Building 1 – Wegenstrass...

Property details

Available from
By agreement
Land surface
4316

Features

Parking

Agency

Online since
23/09/2025
27 days ago

Location

Wegenstrasse 16, 9436 Balgach

Sources