Office space for rent - Boulevard De Saint-Georges 16, 1205 Genève
Why you'll love this property
Modern architecture
Flexible open spaces
Minergie label certified
Arrange a visit
Book a visit with Humbert today!
Office
Office spaces for rent in an iconic building in downtown Geneva
Close to the hyper center of Geneva, office spaces for rent in a building with iconic and modern architecture.
Building R + 7
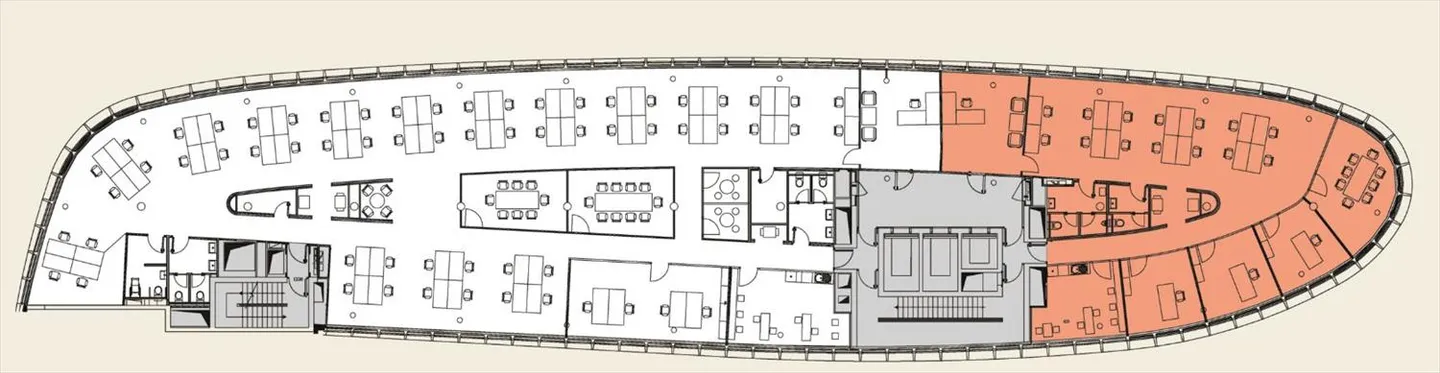
Typical floor of 890 m2 divisible into lots of 260 m2 and 600 m2
Efficient and bright floors with the possibility of creating open spaces or partitioned offices
Elevators and freight lift
58 parking spaces
Minergie label
Technical floor
Active slabs for heating and cooling
Geocooling
Restrooms
More than 500 m...
Property details
- Available from
- By agreement
- Living surface
- 1780 m²



