1 / 10

Office space for rent - Dornacherstrasse 154, 4053 Basel

CHF 2’085.-
-

Why you'll love this property

Central location in Gundeli

Private outdoor seating area

Flexible room sizes available

Arrange a visit

Book a visit today!

Niederer AG mobil in immobilien
This description has been automatically translated from German.

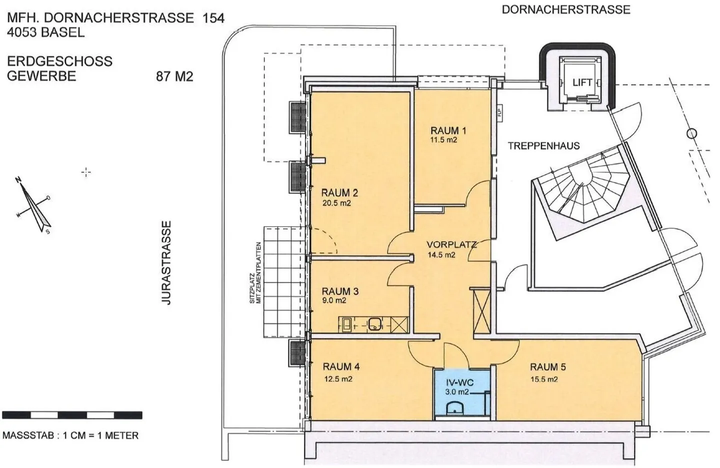
Your business hotspot in gundeli: modern practice/office spaces

Are you looking for a representative and centrally located site for your practice, therapy, or office?

In the heart of the popular Gundeli district, we offer you modern premises on the ground floor with direct access.

The advantages at a glance:

Central location: Right in the middle of Gundeli, in close proximity to the up-and-coming Werk 8 area (about 50 meters away) and the SBB train station (easily accessible on foot).

Perfect accessibility: The bus stop is right at the door, the tram stop i...

Property details

Available from
01.04.2026

Features

Balcony
Parking
Water supply
Wheelchair accessible

Agency

Niederer AG mobil in immobilien
Address:Unterdorfstrasse 5, 3072, Ostermundigen
Ref: 22550.61001
Online since
15/10/2025
3 days ago

Location

Dornacherstrasse 154, 4053 Basel