Storage space for rent - Sternenhofstrasse 15, 4153 Reinach BL
Why you'll love this property
Accessible via lift
Shared restroom facilities
Ideal for various uses
Arrange a visit
Book a visit with Wiedmer today!
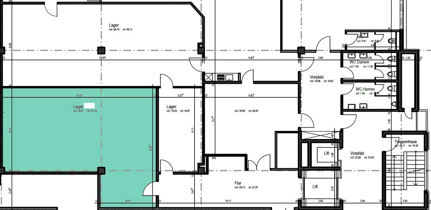
Hobby/storage room in the center of reinach
We are renting an attractive, versatile storage space in the center of Reinach immediately or by arrangement.
Highlights at a glance
- Access with passenger and goods lift
- Shared toilets
- Versatile usage options
- Ideal accessibility by car and public transport
- Parking spaces can be rented if needed
Have we piqued your interest? We would be happy to convince you during a joint viewing!
Attention. Self-promotion: Are you moving into a rental apartment and need support for the best possible sale of y...
Property details
- Available from
- By agreement



