Storage space for rent - Muttenzerstrasse 143, 4133 Pratteln
Why you'll love this property
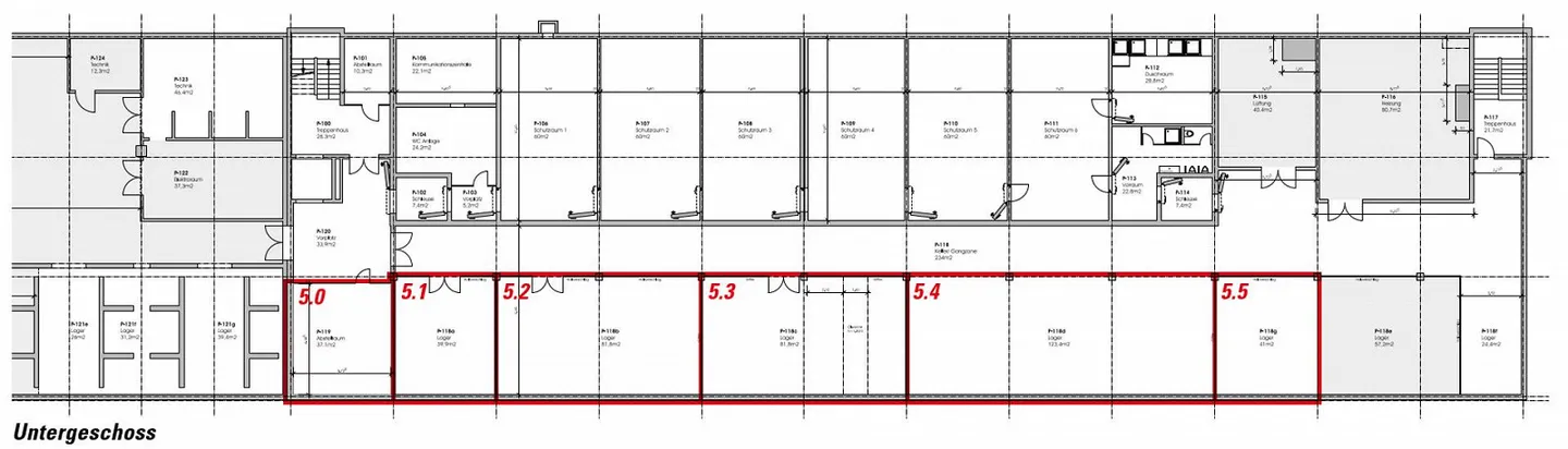
205 m² of flexible space
Direct access to public transport
Parking for tenants and visitors
Arrange a visit
Book a visit with Pfaehler today!
Warehouse space for rent - from 82 m2
The smeyers Immobilien AG rents out 205 m2 of spacious warehouse space in a modern commercial building in Pratteln BL.
The building is located in the western commercial area of Pratteln near the A3 motorway connection. A tram stop provides direct access to public transport.
The storage rooms are accessible via a goods lift, and there are tenant and visitor parking spaces available in the outdoor area.
CHF 70.- per m2 / year plus additional costs
Property details
- Available from
- By agreement



