1 / 10

Office space for rent - Föhneneichstrasse 13d, 6440 Brunnen

2nd floor
CHF 6’100.-
-

Why you'll love this property

Bright, open layout

High-quality oak flooring

Fully equipped kitchen

Arrange a visit

Book a visit today!

Strüby Immo AG
This description has been automatically translated from German.

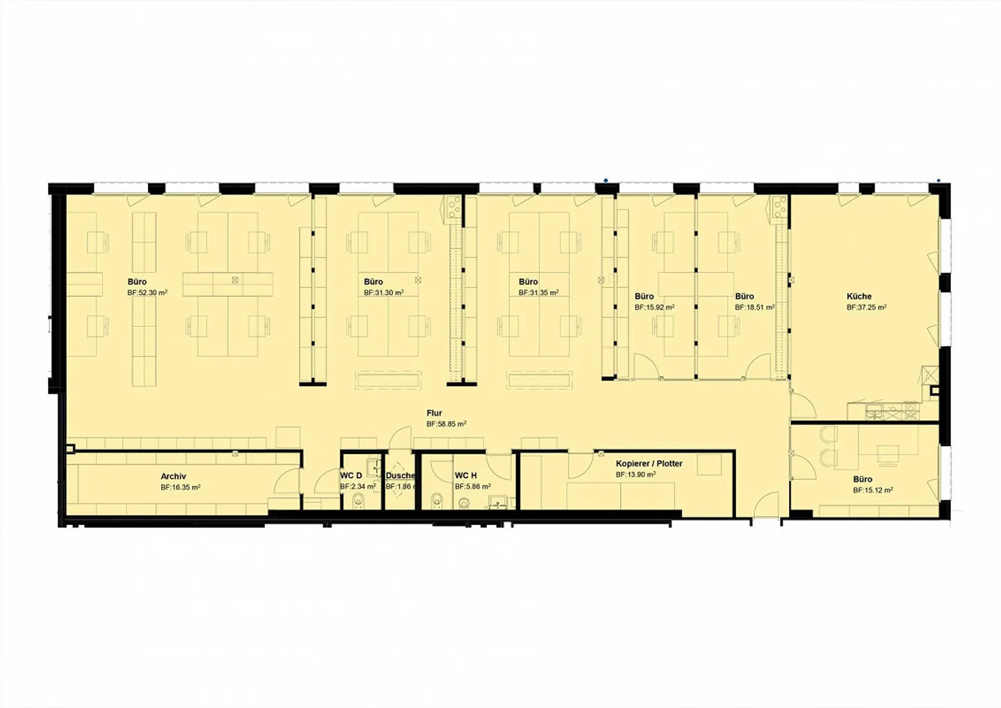
Bright and modern office or practice rooms in the heart of brunnen

Your business at this prime location

Welcome to the modern office or practice rooms in the vibrant heart of Brunnen. Here you will find the perfect environment to lead your business to success in the best location.

The premises impress with openness and plenty of natural light, which, combined with the Minergie standard, creates a pleasant room climate. The flooring made of noble oak parquet and high-quality ball carpet not only provides a modern appearance but also ensures a comfortable working a...

Property details

Available from
By agreement
Construction year
2017

Features

Parking
Elevator
Minergie certified
Wheelchair accessible

Agency

Strüby Immo AG
Address:Seewen SZ, Steinbislin, 6423
Ref: Bürofläche Am Park
Online since
17/10/2025
19 hours ago

Location

Föhneneichstrasse 13d, 6440 Brunnen

Sources