Storage space for rent - Au Voyeboeuf 13, 2900 Porrentruy
Why you'll love this property
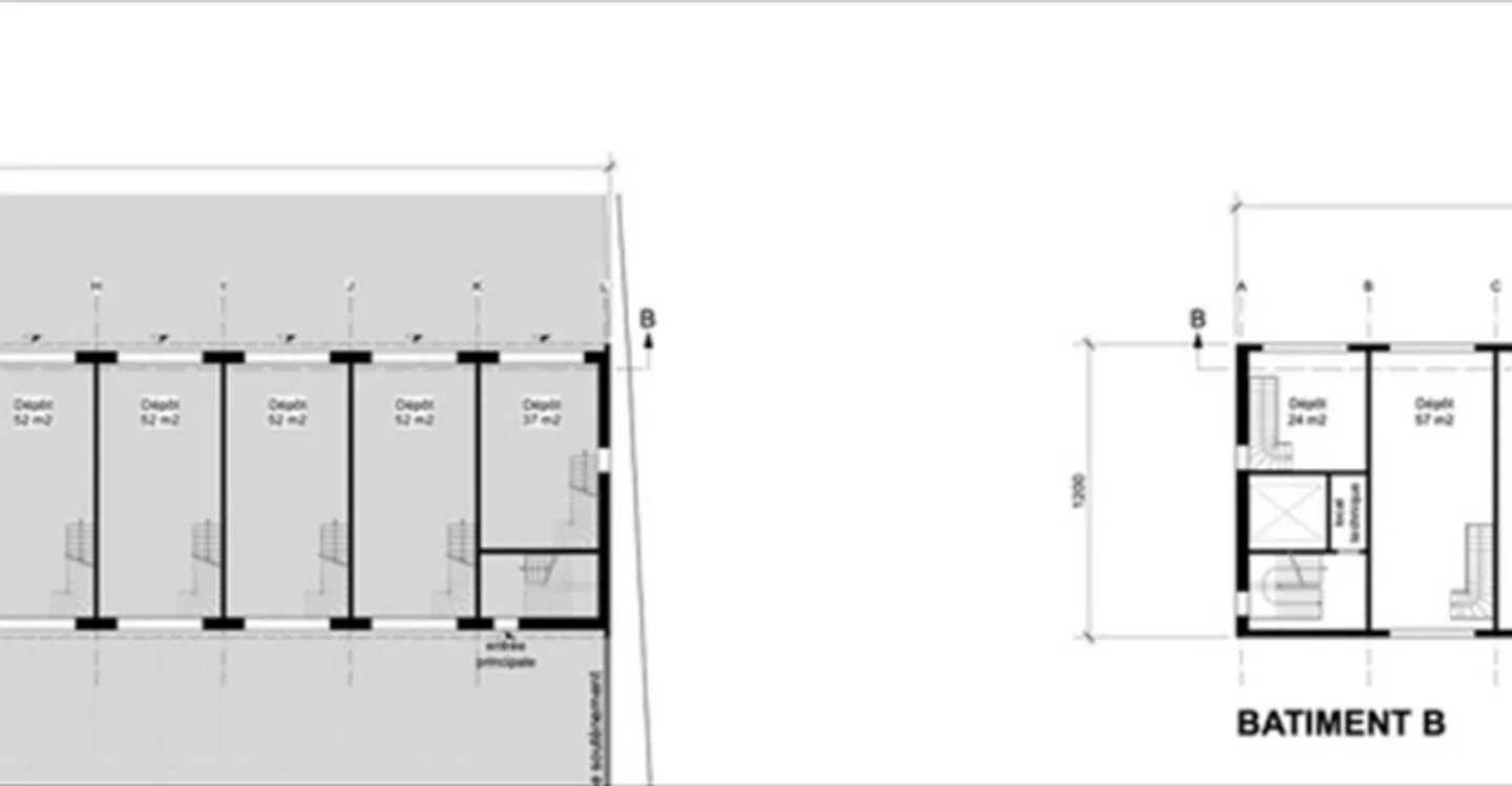
Flexible spaces from 22m²
Strategic location near highway
Customizable for various needs
Arrange a visit
Book a visit today!
Deposit
Modular craft spaces in Porrentruy - From 22m² to 527m² on the ground
Modular craft spaces in Porrentruy - From 22m² to 527m² on the ground
Are you an entrepreneur, craftsman, or individual looking for a flexible and strategic space to develop your activity? The Voyeboeuf Space in Porrentruy is the ideal solution for your needs. Whether for small or large businesses, our modular craft premises adapt to all ambitions, from workshop to factory, including offices or storage spaces.
Spaces tailored ...
Property details
- Available from
- By agreement
- Construction year
- 2025



