Office space for rent - 1226 Thônex
Why you'll love this property
Exceptional natural light
Private interior patios
Customizable layout options
Arrange a visit
Book a visit with CI today!
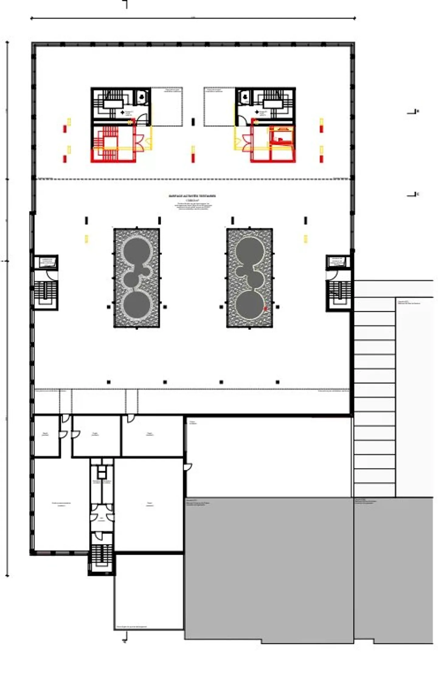
In the heart of Thônex, discover fully renovated and modernized offices located in an iconic building above the Migros, which will soon reintegrate its premises.
1,600 m² of space offered in a single unit and potentially divisible into 1,000 and 600 m². The offices have private interior patios and benefit from exceptional natural light thanks to a fully glazed facade.
The spaces are delivered raw. A custom layout can be considered depending on the tenant's specifications, in exchange for a surchar...
Property details
- Available from
- By agreement
- Living surface
- 1000 m²
- Land surface
- 1000 m²



