Apartment for rent - Rue De La Tour-De-Boël, 1204 Genève
Why you'll love this property
Historic 18th-century building
Spacious living area with fireplace
Close to public transport
Arrange a visit
Book a visit today!
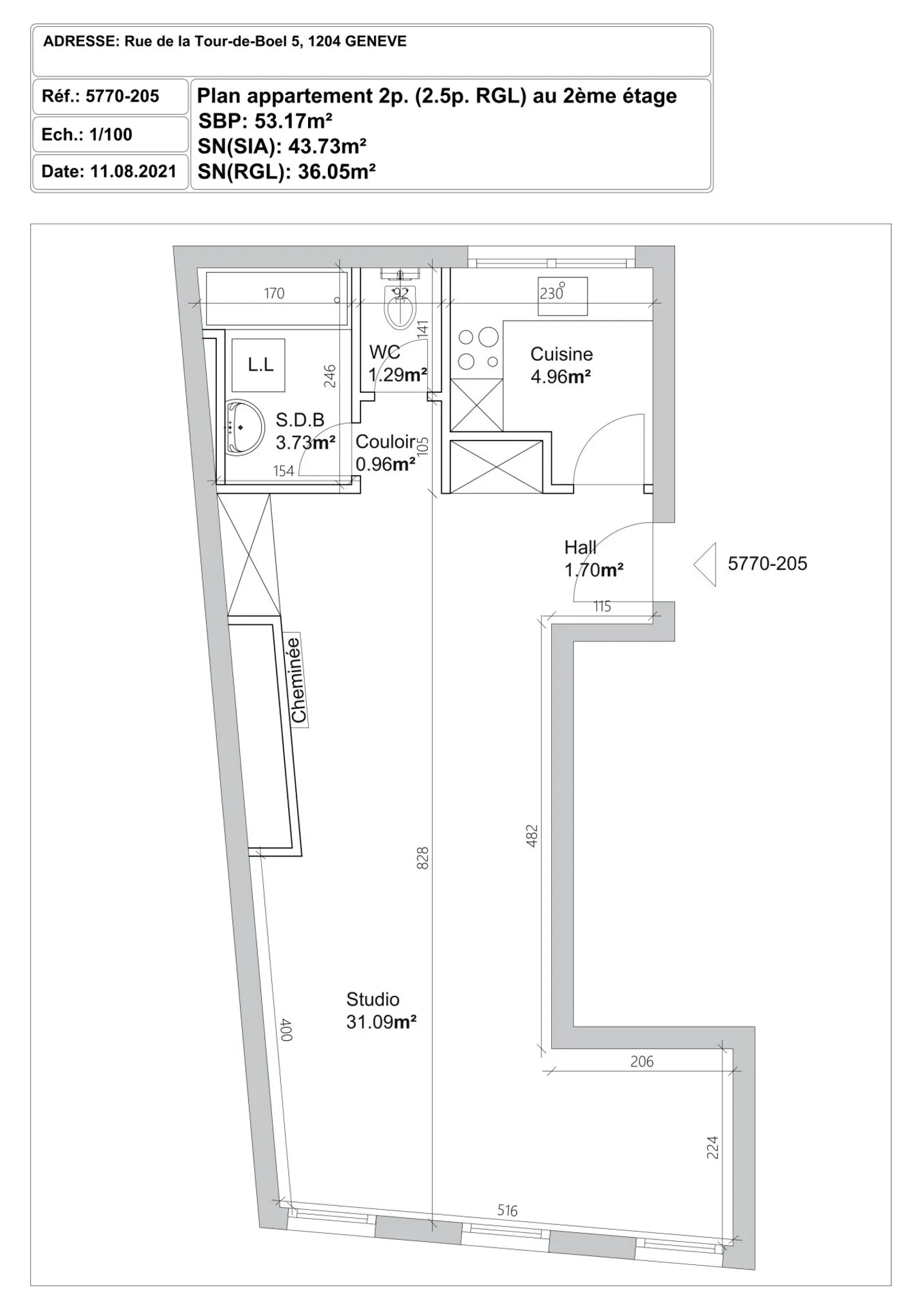
Charming 2.5 rooms in the heart of the Old Town!
Reference: 5770-205
Address: Rue de la Tour-de-Boël, 1204 Geneva
Rent: CHF 1,720.- + CHF 115.- charges + CHF 80.- additional costs
In the heart of the charming Old Town, discover this magnificent 2.5-room apartment of 43 m², combining charm and modernity. Located on the 2nd floor of a historic 18th-century building, this apartment consists of:
- Fitted & semi-equipped kitchen (oven, ceramic hob, dishwasher, hood, fridge, freezer)
- Very large living room with sleeping area and fireplace
- Bathroom
Costs breakdown
- Net rent
- CHF 1’920
- Additional costs
- CHF 200
- Total rent
- CHF 1’920
Property details
- Available from
- By agreement
- Rooms
- 2.5
- Bathrooms
- 1
- Floor
- 2nd



