Penthouse for rent - Pannerhofstrasse, 6034 Inwil
Why you'll love this property
High-quality modern finishes
Smart layout for comfort
Parking options available
Arrange a visit
Book a visit today!
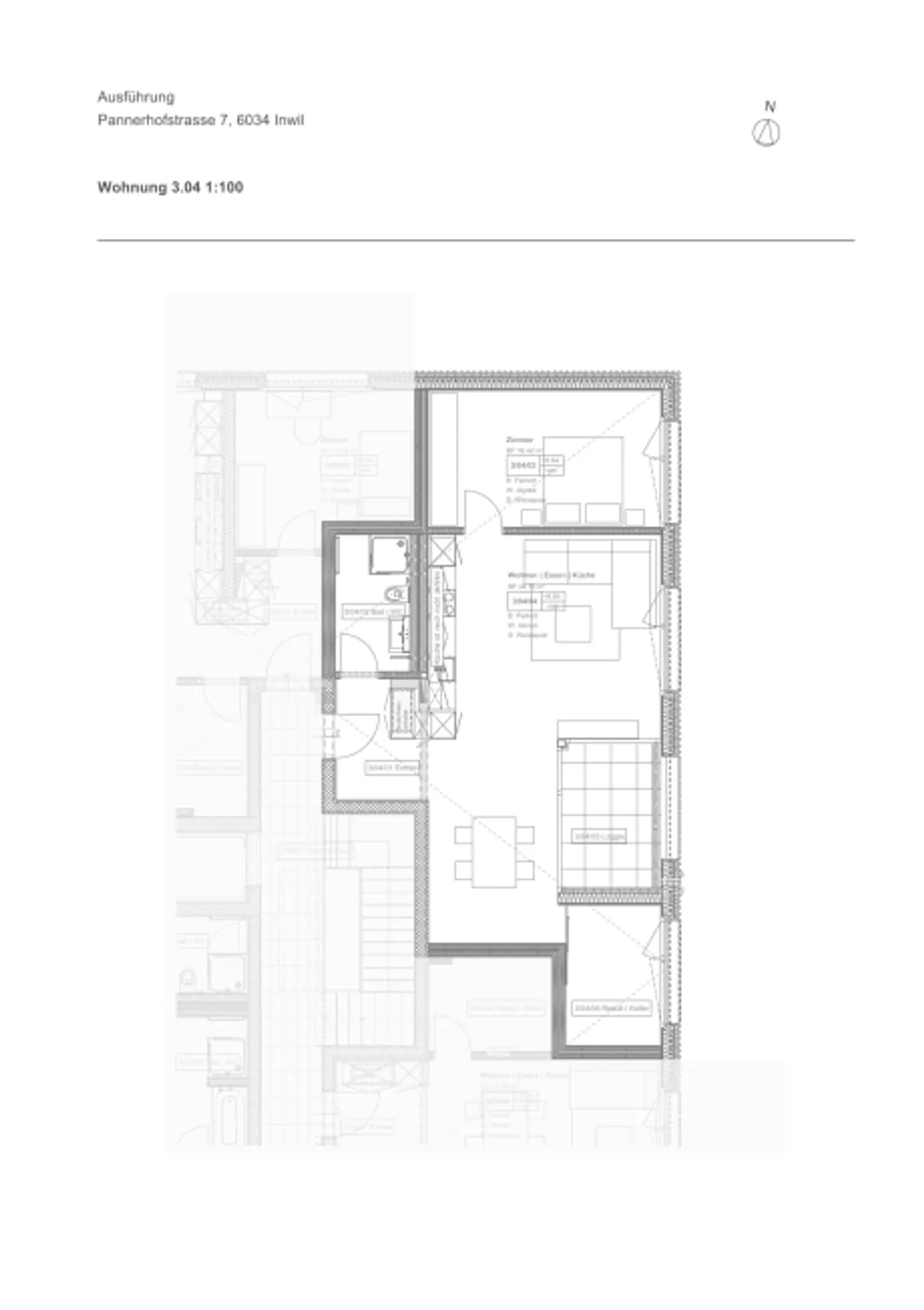
First rental 2.5-room attic apartment after roof extension
In the middle of the village of Inwil in Lucerne lies the apartment building Pannerhofstrasse 7.
An additional floor is currently being added to the existing property (attic floor brown), so that four modern and high-quality rental apartments can be offered from November 1, 2025.
The apartments impress with a modern standard of development combined with a clever floor plan. In addition to the apartments, parking spaces in the underground garage for CHF 150.00 per month and outdoor parking spaces...
Costs breakdown
- Net rent
- CHF 2’080
- Additional costs
- CHF 190
- Total rent
- CHF 2’080
Property details
- Available from
- By agreement
- Rooms
- 2.5
- Construction year
- 2014
- Living surface
- 72 m²
- Floor
- 3rd



