Penthouse for rent - Littenweg, 9462 Montlingen
Why you'll love this property
Bright open layout
Sustainable energy supply
Elegant modern kitchen
Arrange a visit
Book a visit today!
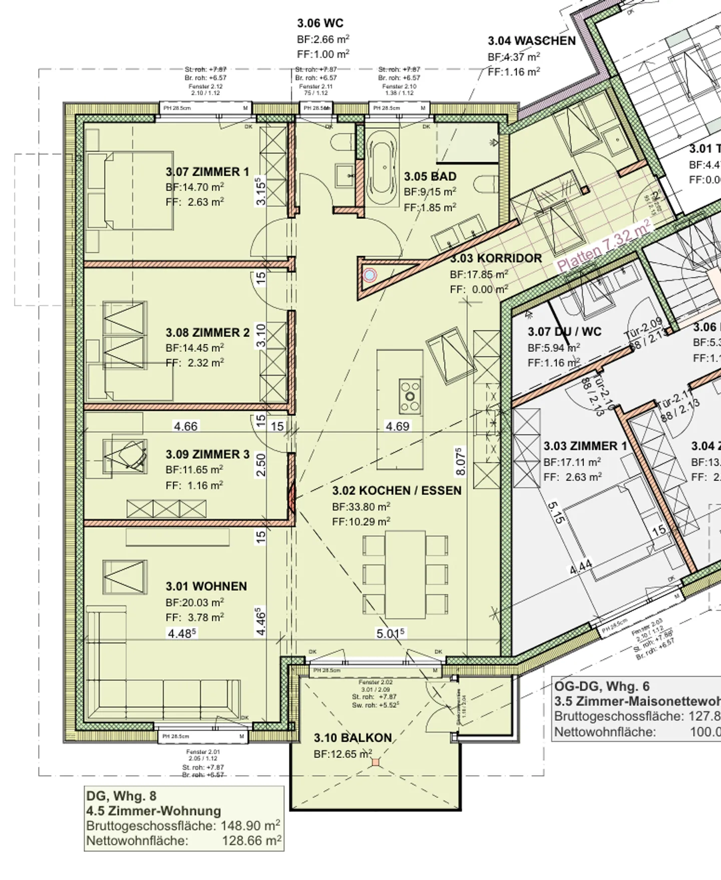
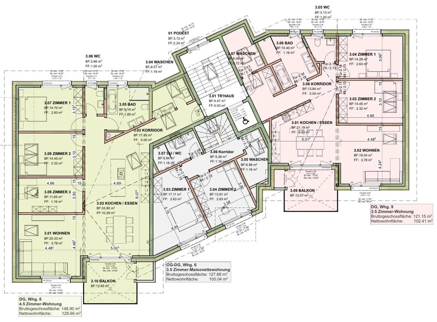
Newly built 4.5-room apartment on the top floor for rent
Newly built apartment in the beautiful Rhine Valley with sustainable energy supply.
A modern new building with attractive rental apartments is being constructed at Littenweg 3 in Montlingen – quietly located yet well connected. From December 2025, a bright 4.5-room apartment with high-quality finishing standards will be available to you.
Highlights of the apartment:
- Thoughtful floor plan with plenty of daylight
- Modern kitchen with light fronts, dark countertop, and stylish wooden wall – an elega...
Costs breakdown
- Net rent
- CHF 2’580
- Additional costs
- CHF 200
- Total rent
- CHF 2’580
Property details
- Available from
- By agreement
- Rooms
- 4.5
- Construction year
- 2025
- Living surface
- 128.66 m²



