Apartment for rent - Hühnerbühlstrasse, 3065 Bolligen
Why you'll love this property
Spacious 49 m² terrace
High-end finishes throughout
Cozy Swedish stove in living room
Arrange a visit
Book a visit with Renata.moeri@niederer.com today!
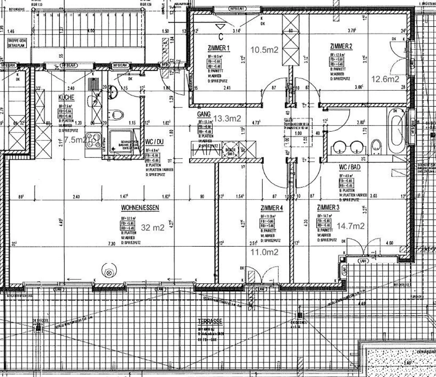
Modern 5.5-room penthouse apartment in bolligen
This 5.5-room penthouse apartment near the center of Bolligen impresses with its high standard of finish, such as tiled floors in the living room/kitchen/bathroom and parquet floors in the bedrooms.
The Swedish stove in the living room will also warm you to this apartment. In addition, this apartment includes a large attic terrace (49 m2).
The modern living kitchen is equipped with granite countertops, microwave, ceramic glass cooktop, and dishwasher. The bathroom has a bathtub/toilet as well a...
Costs breakdown
- Net rent
- CHF 2’600
- Additional costs
- CHF 250
- Total rent
- CHF 2’600
Property details
- Available from
- 01.01.2026
- Rooms
- 5.5
- Construction year
- 2005
- Living surface
- 110 m²
- Floor
- 2nd



