Apartment for rent - Bützackerstrasse, 8304 Wallisellen
Why you'll love this property
Quiet green location
Modern kitchen with granite
Parkett flooring throughout
Arrange a visit
Book a visit today!
Freshly Painted Apartment
Viewing appointment: MO, 04.05.26 from 18.00 - 18.30. Ring at the stairs. (You can go to the viewing without prior registration).
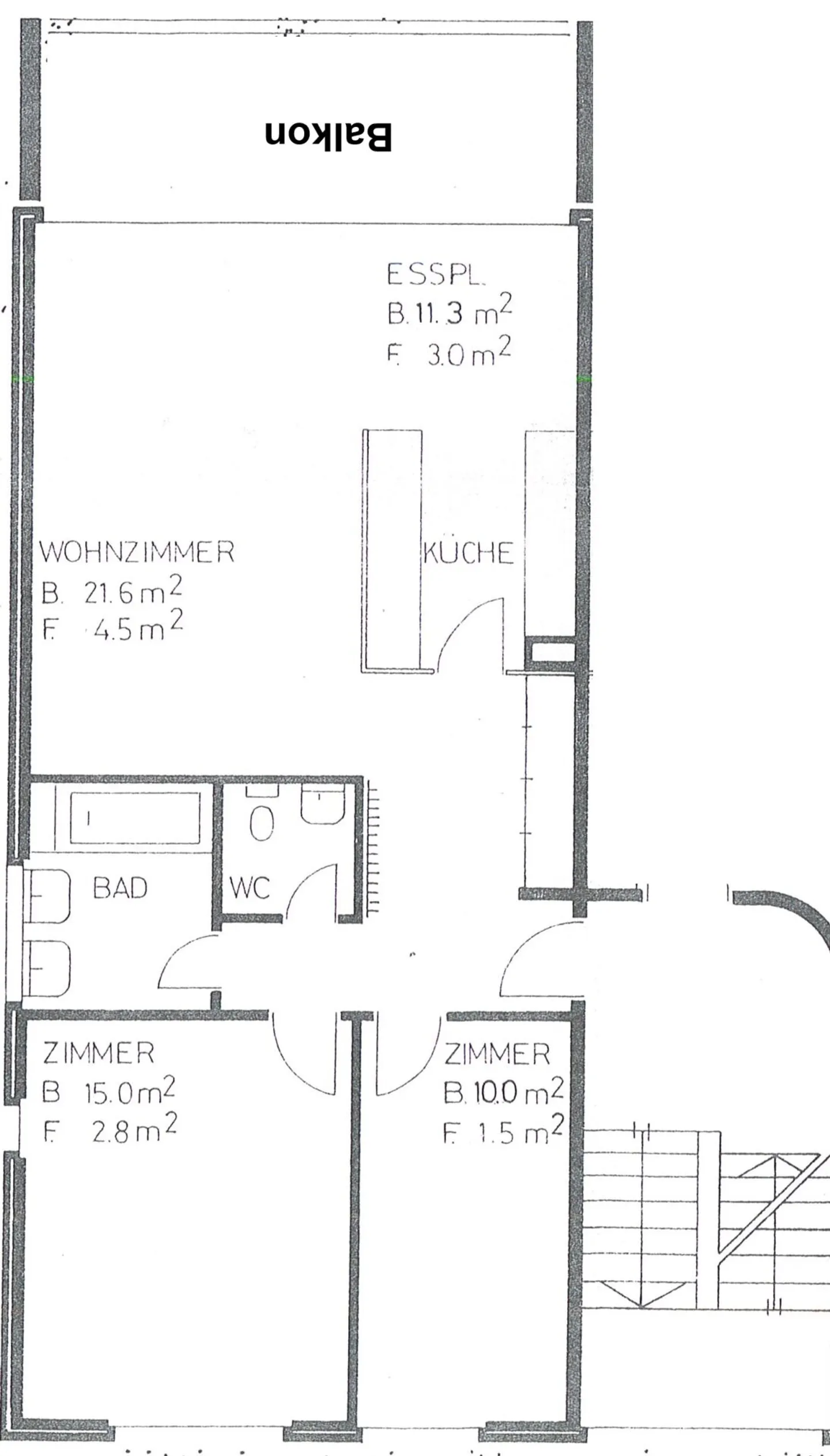
We are renting a diverse and modern 3.5-room apartment on the 1st floor with a lot of living quality starting from 01.07.26. (no elevator).
The kitchen with granite countertop is equipped with an oven, ceramic cooktop, dishwasher, and refrigerator.
The entire apartment is laid out with parquet flooring, except for the kitchen and bathroom which have tiles.
Here you enjoy ...
Costs breakdown
- Net rent
- CHF 1'800
- Additional costs
- CHF 90
- Total rent
- CHF 1'800
Property details
- Available from
- By agreement
- Rooms
- 3.5
- Bathrooms
- 1
- Floor
- 1st



