Apartment for rent - Avenue De Malley, 1020 Renens VD
Why you'll love this property
Spacious southwest terrace
Panoramic Jura views
High-end finishes throughout
Arrange a visit
Book a visit today!
Superb 3.5 room apartment with terrace in central malley
For rent from September 1st (or to be agreed) – Magnificent 3.5 room apartment on the top floor in Central Malley
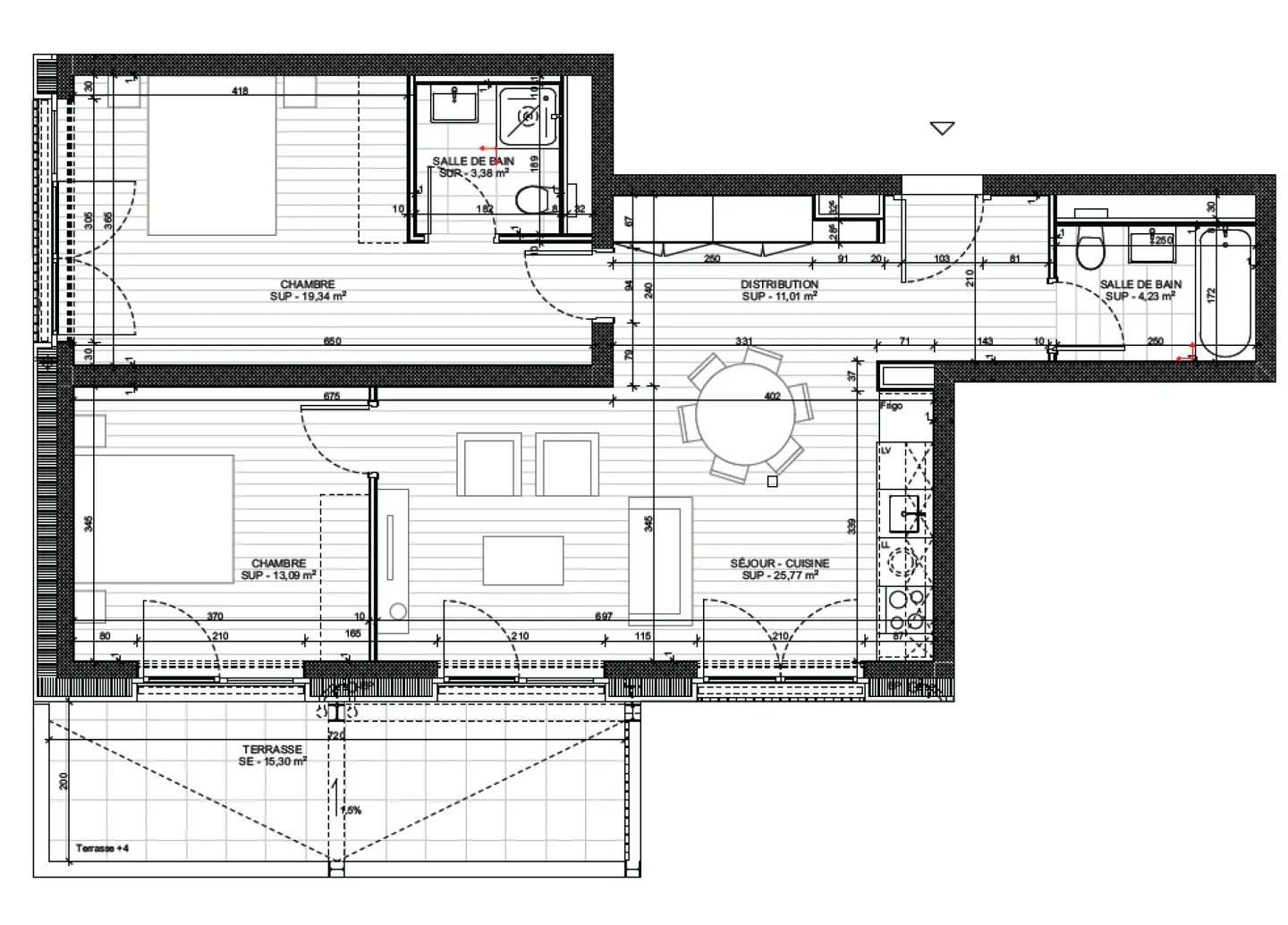
Located on the 4th and top floor of a new building in the sustainable neighborhood of Central Malley, this 3.5 room apartment benefits from the best location in the building: southwest corner, unobstructed view, and optimal sunlight. A rare property offering a large terrace and breathtaking views of the Jura, ideal for enjoying sunsets.
Distribution:
Entrance hall with distribution spa...
Costs breakdown
- Net rent
- CHF 2’750
- Additional costs
- CHF 150
- Total rent
- CHF 2’750
Property details
- Available from
- By agreement
- Rooms
- 3.5
- Bathrooms
- 2
- Living surface
- 77 m²
- Floor
- 4th



