Apartment for rent - Rue D'aarberg / Aarbergstrasse 9b, 2560 Nidau
Why you'll love this property
Stylish parquet flooring
Balcony with canal view
Prime location near Biel lake
Arrange a visit
Book a visit with Céline today!
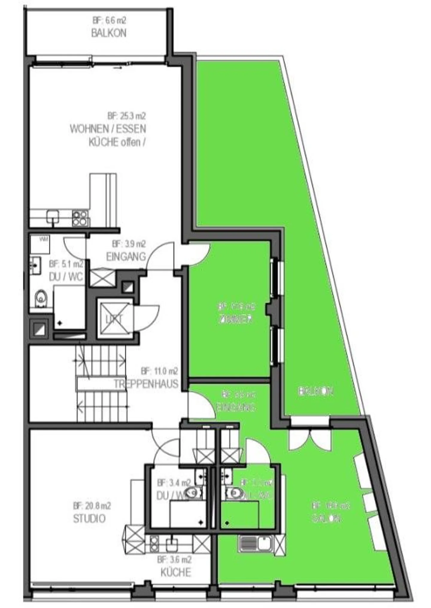
Top location, top modern - Your new home by the Zihl Canal!
We are renting a modern, spacious studio directly by the Zihl Canal, available immediately or by arrangement.
The kitchen is equipped with a high-quality ceramic hob and a nearly new oven. The living area impresses with a stylish parquet floor that creates a cozy and charming atmosphere. A built-in wardrobe offers you additional storage space. For maximum living comfort, a balcony with a view of the canal is available.
The studio is located in one of the most sought-after residential areas in th...
Costs breakdown
- Net rent
- CHF 1’000
- Additional costs
- CHF 100
- Total rent
- CHF 1’000
Property details
- Available from
- By agreement
- Floor
- 1st



