Apartment for rent - Saxweg 9a, 9470 Buchs SG
Why you'll love this property
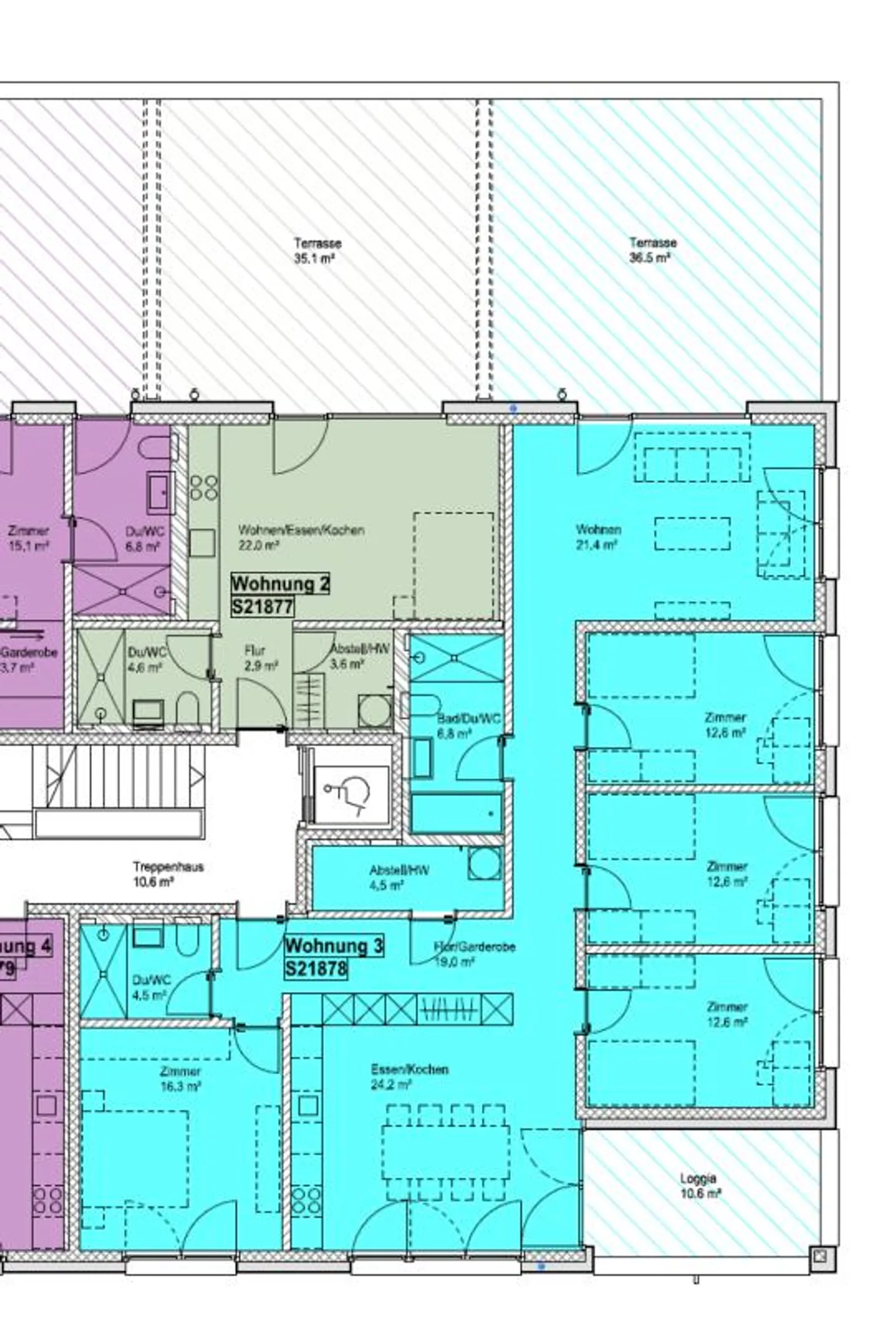
Expansive terrace of 35 m²
Bright rooms with modern design
Quiet location near amenities
Arrange a visit
Book a visit with Immoverita today!
Live like in a terrace house - spacious 5½-room apartment with breathtaking views in Buchs SG
This extraordinary 5½-room apartment in the southern part of Buchs SG impresses with its spaciousness, high-quality finish, and wonderful views.
The net living area of 134 m², the cozy loggia (10 m²), and the expansive terrace area of around 35 m² offer plenty of space for living, relaxing, and enjoying. Light-flooded rooms and a well-thought-out floor plan with a separate kitchen/dining area and living r...
Costs breakdown
- Net rent
- CHF 2’600
- Additional costs
- CHF 250
- Total rent
- CHF 2’600
Property details
- Available from
- By agreement
- Rooms
- 5.5
- Bathrooms
- 2
- Construction year
- 2025
- Living surface
- 134 m²
- Terrace surface
- 36 m²
- Balcony surface
- 10 m²
- Floor
- 1st
- Building floors
- 2




