Apartment for rent - Könizstrasse 82, 3008 Bern
Why you'll love this property
Central location
Large balcony
No deposit required
Arrange a visit
Book a visit today!
RENT WITHOUT DEPOSIT - Exactly right for city dwellers
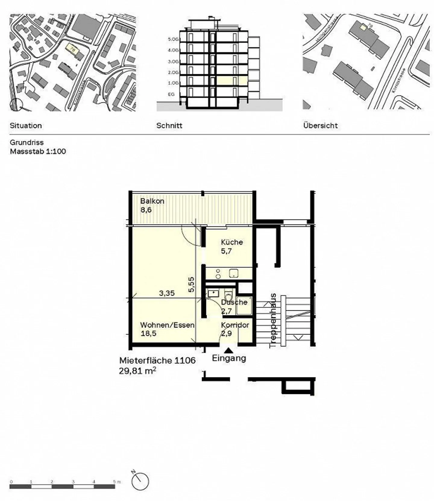
If you work in the city and value a short commute, this offer will definitely meet your needs. The small but comfortably furnished apartment is located in a central location, with tram and bus stations as well as shopping facilities within a few minutes' walk.
For your living quality:
- Parquet flooring in the living and sleeping area
- Built-in wardrobes at the entrance
- Wet room with shower/WC
- Large balcony
- Cellar compartment
- Elevator
Additionally on request: Parking space in the underground ga...
Costs breakdown
- Net rent
- CHF 1’020
- Additional costs
- CHF 120
- Total rent
- CHF 1’020
Property details
- Available from
- 01.04.2026
- Rooms
- 1.5
- Construction year
- 1969
- Living surface
- 31 m²
- Floor
- 2nd



