Apartment for rent - Grand-Rue 82, 1180 Rolle
Why you'll love this property
Spacious open kitchen
Cozy mezzanine area
Ideal lakeside location
Arrange a visit
Book a visit today!
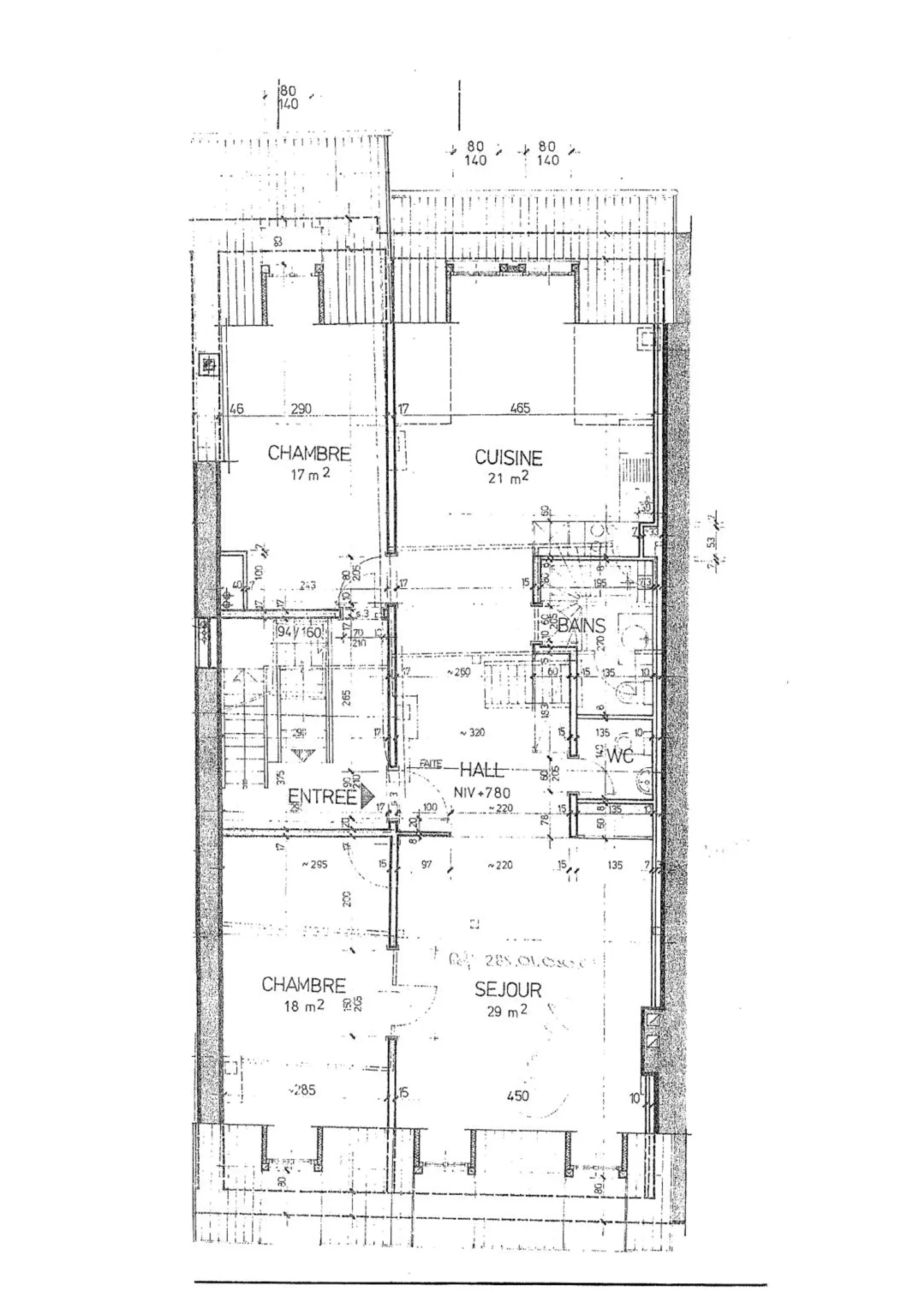
Charming apartment in the heart of Grand-Rue and a stone's throw from the lake
This attic apartment of approximately 100 m2 will charm you with its ideal location and spacious area. It includes:
- Open-plan kitchen leading to the living room;
- Two bedrooms;
- Bathroom/WC;
- Mezzanine.
The building does not have a cellar with the apartments. Refreshment work is planned before the re-rental of the apartment.
Availability: 15.11.2025
Net rent: CHF 2,720.00
Charge advance: CHF 150.00
TO VISIT, PLEASE REGISTER DIRECTLY ONLINE, UNDER THE VISIT REQUEST TAB, ON OUR WEBSITE WWW.BURNIE...
Costs breakdown
- Net rent
- CHF 2’870
- Additional costs
- CHF 150
- Total rent
- CHF 2’870
Property details
- Available from
- 15.11.2025
- Rooms
- 3.5



