Apartment for rent - Engelhardstrasse 81, 3280 Murten
Why you'll love this property
Open kitchen with dining area
Bright living spaces
Garden seating area
Arrange a visit
Book a visit today!
Rent without deposit - here your dream home could come true
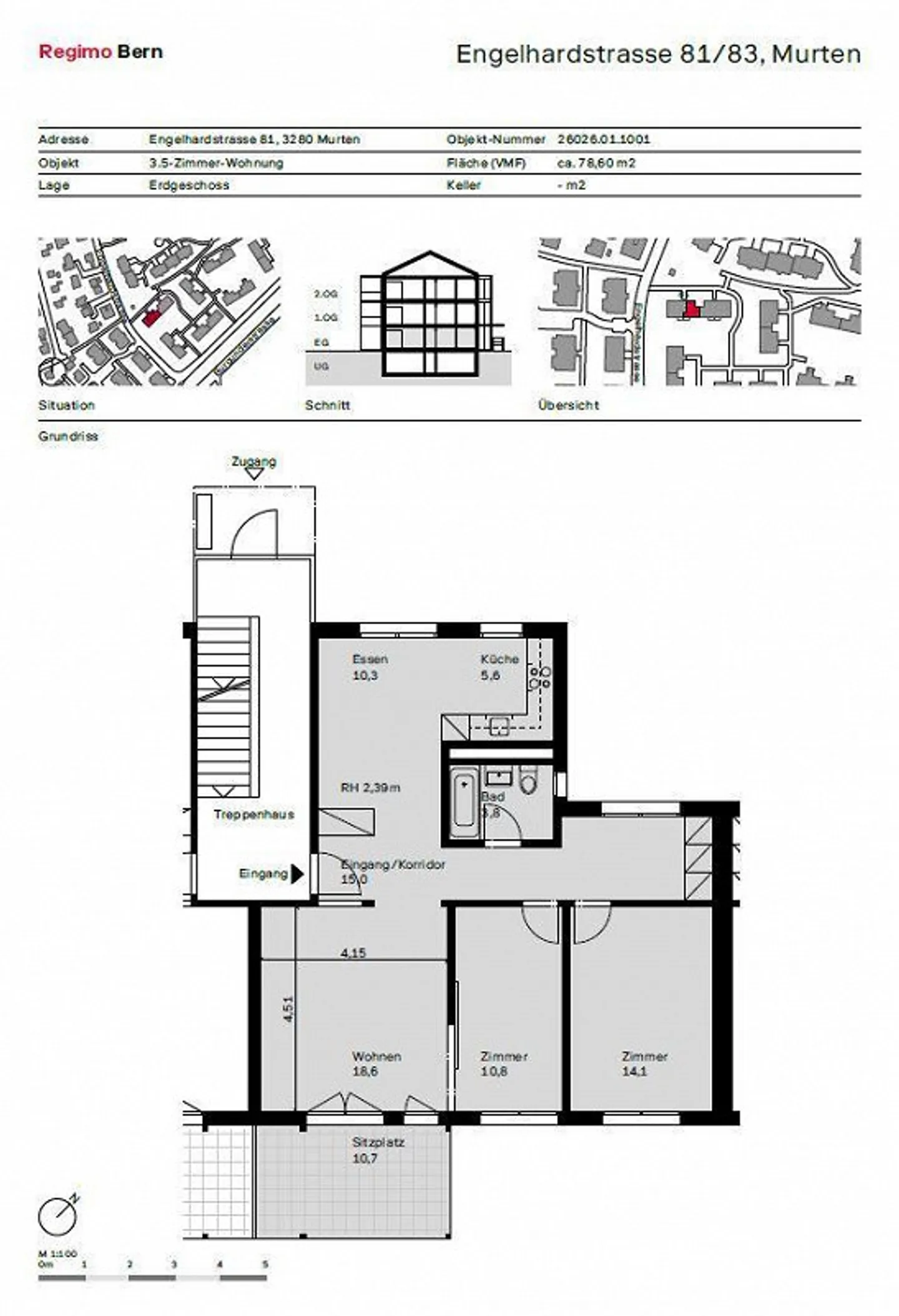
Convenient location, attractive layout, and plenty of light and air: These advantages make the apartment a particularly desirable place to live and feel good. Singles or couples who appreciate comfort will feel at home here from day one.
For your living quality:
- open kitchen with ceramic glass cooktop, dishwasher, and dining area
- parquet flooring in living and bedrooms
- tiled flooring in kitchen and wet room
- wet room with bath and WC
- wardrobe at the entrance
- garden seating area
- cellar compa...
Costs breakdown
- Net rent
- CHF 1’790
- Additional costs
- CHF 310
- Total rent
- CHF 1’790
Property details
- Available from
- 01.03.2026
- Rooms
- 3.5
- Living surface
- 83 m²
- Floor
- Ground



