Penthouse for rent - In Reben 8, 8800 Thalwil
Why you'll love this property
Breathtaking lake views
Stylish modern interiors
Open living space design
Arrange a visit
Book a visit with Aimée today!
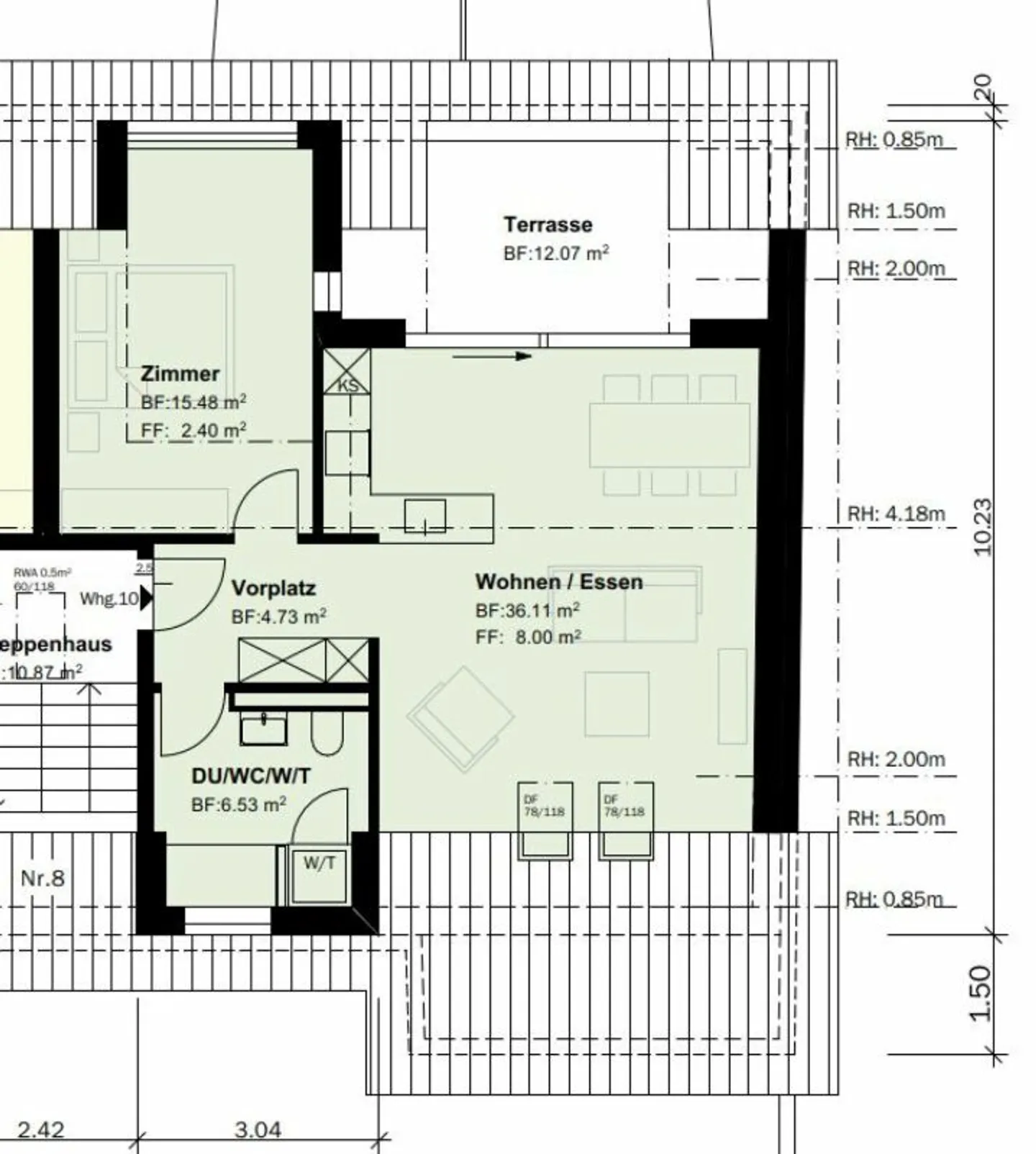
First rental after renovation - Dreamlike 2.5-room attic apartments with lake view!
Thalwil
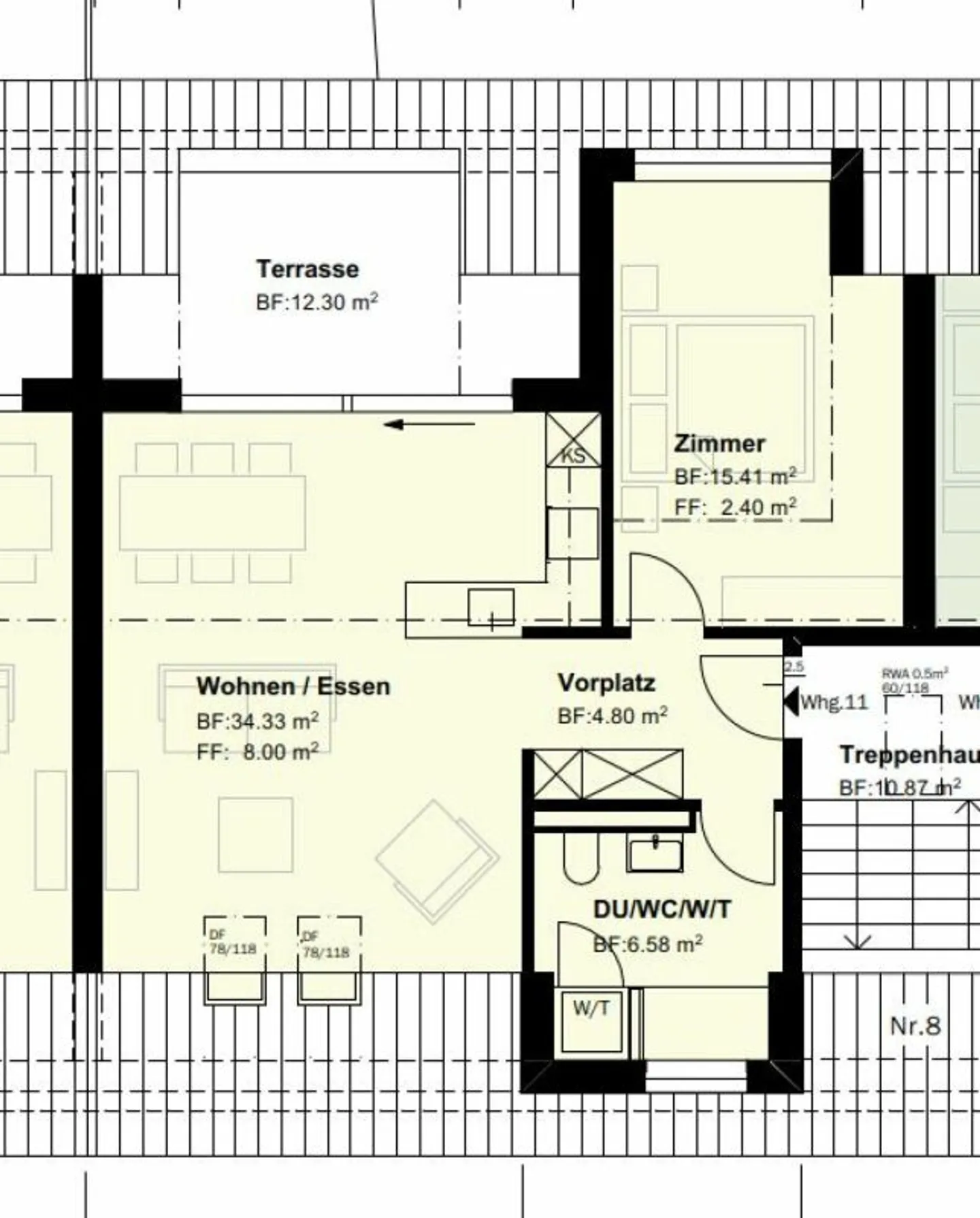
The first rental project with six 1.5-room apartments and sixteen 2.5-room apartments is located in the heart of Thalwil. It features well-furnishable floor plans and an optimal south orientation. The apartments impress with a high level of living comfort. This includes a modern, stylish, and sustainable construction standard. The selected high-quality materials and the harmonious color concept perfectly complete the overall project.
Selected apartments - especially in house No. 10 - offer...
Costs breakdown
- Net rent
- CHF 2'450
- Additional costs
- CHF 180
- Total rent
- CHF 2'630
Property details
- Available from
- 01.07.2026
- Rooms
- 2.5
- Bathrooms
- 1
- Renovation year
- 2026
- Living surface
- 63 m²
- Floor
- 3rd




