Apartment for rent - Chemin Des Charrières 8, 2024 St-Aubin-Sauges
Why you'll love this property
Quiet green area
Common playground
Covered parking available
Arrange a visit
Book a visit today!
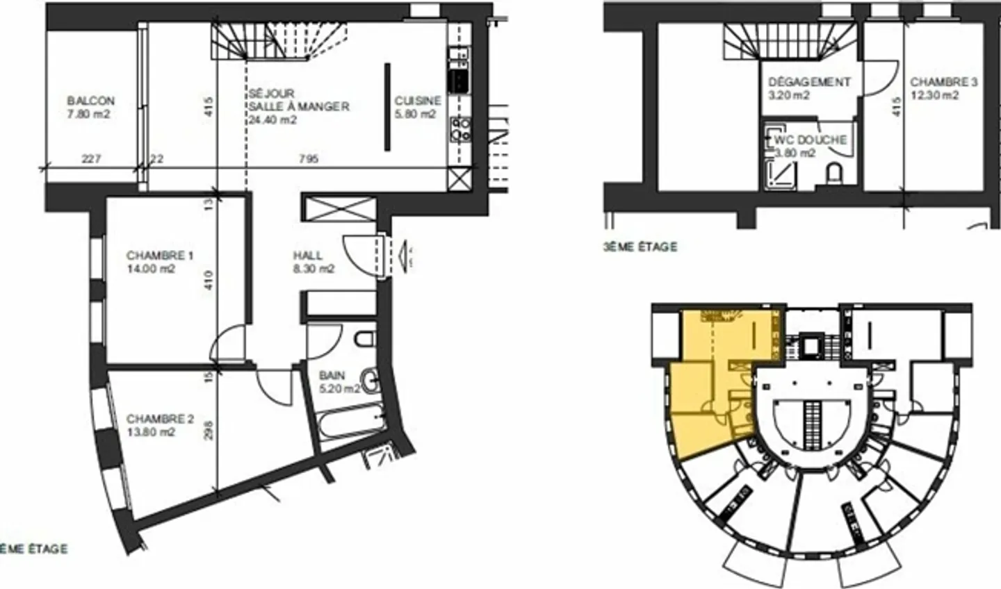
Beautiful completely renovated 3.5 room apartment with balcony
Completely renovated 3.5-room apartment with balconyLocated on the heights of the village of St-Aubin-Sauges, in a building with original curves, this beautiful, completely renovated 3.5-room apartment faces west: a hallway, a living room, a fitted kitchen, two bedrooms, a bathroom/WC, a balcony, a cellar. Low visibility (passage and proximity to the neighboring building). Quiet and green area. The building has a communal laundry room and a playground. There is the possibility to rent a covered ...
Property details
- Available from
- By agreement
- Rooms
- 3.5
- Construction year
- 1993
- Floor
- 1st



