1 / 6

Apartment for rent - Rue Hans-Hugi / Hans-Hugi-Strasse 7, 2502 Biel/Bienne

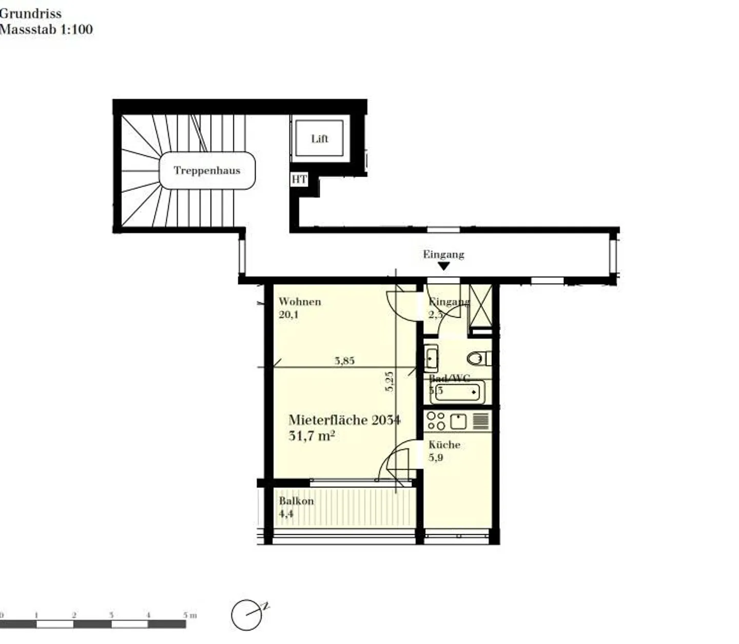
1 room • 32 m² • 3rd floor
CHF 960.-
CHF 360 m² / year

Why you'll love this property

No deposit required

Central location

Stylish parquet flooring

Arrange a visit

Book a visit today!

Regimo Bern AG
This description has been automatically translated from German.

Rent without deposit - are you looking for your first apartment?

The modern apartment is located in the city center with shopping facilities in close proximity. It is ideal for singles who appreciate optimal public transport connections and proximity to the main train station.

For your living quality:

- Kitchen with glass ceramic and resin cover

- Wet room with shower/WC

- Parquet floor in living and bedroom

- Tiled floor in kitchen and wet room

- Cellar

- Elevator

On request: Parking space for CHF 160.00 / monthly

With this rental property, you do not have to pay the...

Property details

Available from
01.01.1970
Rooms
1
Construction year
1960
Living surface
32
Floor
3rd

Features

Garden
Garage
Balcony
Unobstructed view
Elevator
Animal friendly

Agency

Regimo Bern AG
Ref: 26601.02.2034
Online since
12/09/2025
1 month ago

Location

Rue Hans-Hugi / Hans-Hugi-Strasse 7, 2502 Biel/Bienne

Sources