Apartment for rent - Hauptstrasse 7, 9555 Tobel
Why you'll love this property
Bright, well-designed rooms
Generous balcony for relaxation
Practical built-in wardrobes
Arrange a visit
Book a visit today!
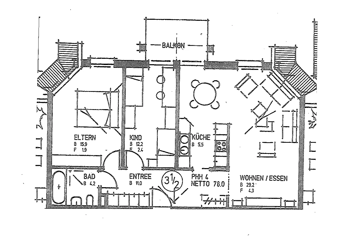
3.5 room apartment
Cozy and spacious apartment including 1 month free rent
Spacious 3.5-room apartment in a quiet location - available from November 1st or by arrangement
Highlights of the apartment:
- freshly knitted apartment
- partially with new parquet flooring
- bright, well-shaped rooms
- bathroom with bathtub
- practical built-in wardrobes in the corridor
- generous balcony for relaxing hours
- separate cellar compartment for additional storage space
A parking space in the underground garage can be rented if neede...
Costs breakdown
- Net rent
- CHF 1’350
- Additional costs
- CHF 160
- Total rent
- CHF 1’350
Property details
- Available from
- By agreement
- Rooms
- 3.5



