Apartment for rent - Furtweg 7, 8248 Uhwiesen
Arrange a visit
Book a visit with Stephan today!
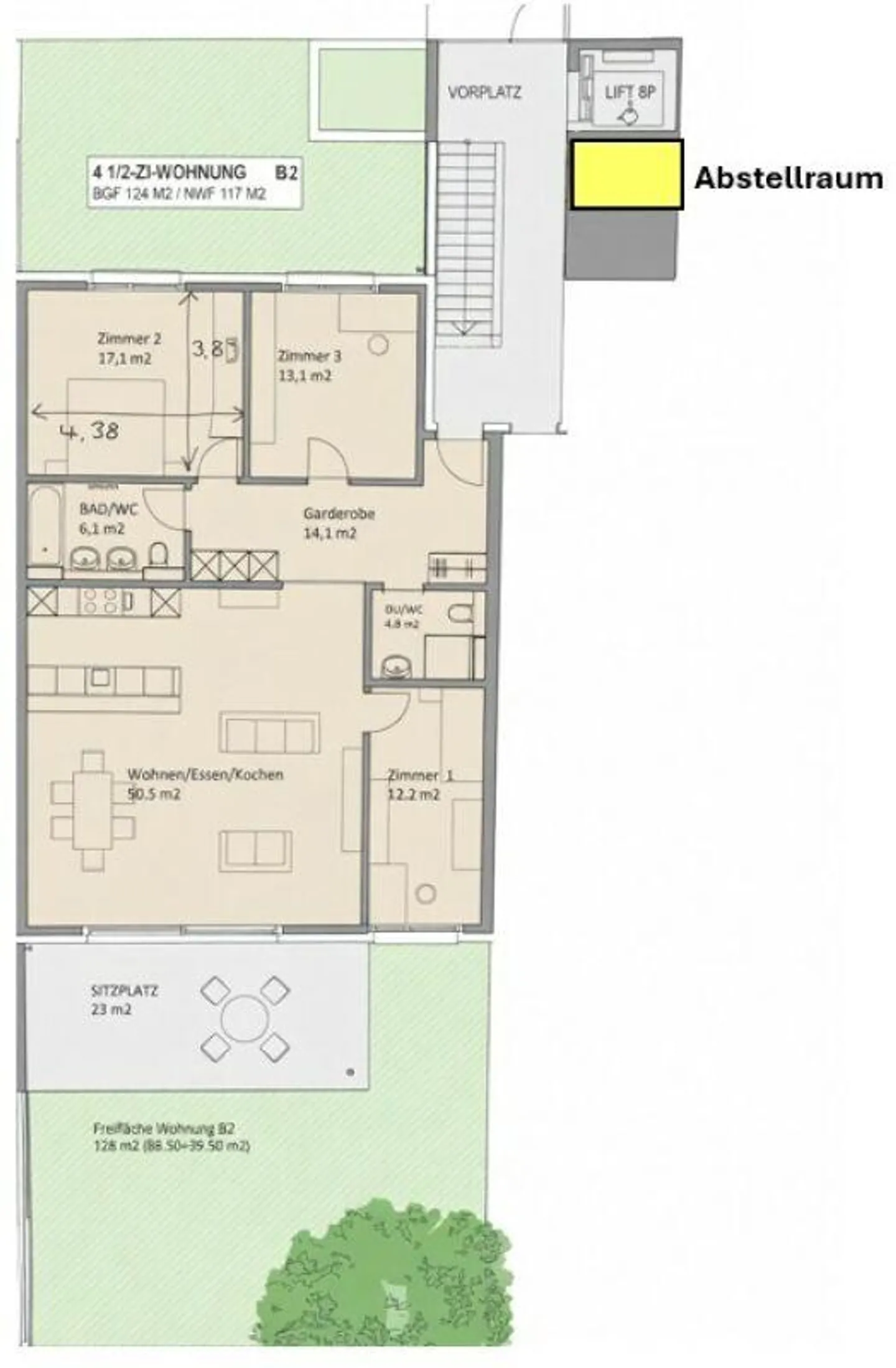
Modern 4.5-room garden apartment with many extras
The spacious garden apartment impresses with an exclusive standard of finish and guarantees a high level of living comfort. The underground garage is accessible without barriers via a lift. The property, built in 2012, is equipped with an efficient heat pump and is south-facing.
The apartment is located in a quiet residential area (30 km/h zone). Within walking distance, there are a Volg, a bus stop, butcher, farm shops, sports facilities, kindergarten, playground, and primary school.
Apartment wi...
Costs breakdown
- Net rent
- CHF 2'680
- Additional costs
- CHF 300
- Total rent
- CHF 2'680
Property details
- Available from
- By agreement
- Rooms
- 4.5
- Floor
- Ground



