Apartment for rent - Förstergasse 7, 8580 Sommeri
Why you'll love this property
Beautiful terrace space
Quiet natural surroundings
Modern kitchen amenities
Arrange a visit
Book a visit with Yannik today!
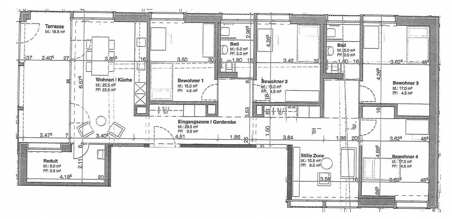
Modern Living in Harmony with Nature! (Limited until February 2...
Highlights of the apartment & surroundings:
- Beautiful terrace, as well as modern kitchen and wet room
- Very quiet location
- Scenic surroundings
Key facts at a glance:
Pets: Yes
Instruments: No
Lift: Yes
Parking: Yes - Parking space available for CHF 50.- / month
For a viewing appointment or further information about the apartment, please contact us via the contact form. Thank you.
Further exciting apartments can be found on our homepage: www.goldinger.ch
No liability is assumed for the area specifi...
Costs breakdown
- Net rent
- CHF 1'800
- Additional costs
- CHF 200
- Total rent
- CHF 1'800
Property details
- Available from
- By agreement
- Rooms
- 5.5
- Living surface
- 147 m²
- Floor
- Ground



