Apartment for rent - Stadlerstrasse 60, 8404 Winterthur
Why you'll love this property
Modern kitchen with dishwasher
Cozy outdoor seating area
In-unit washer and dryer
Arrange a visit
Book a visit with Hagmann today!
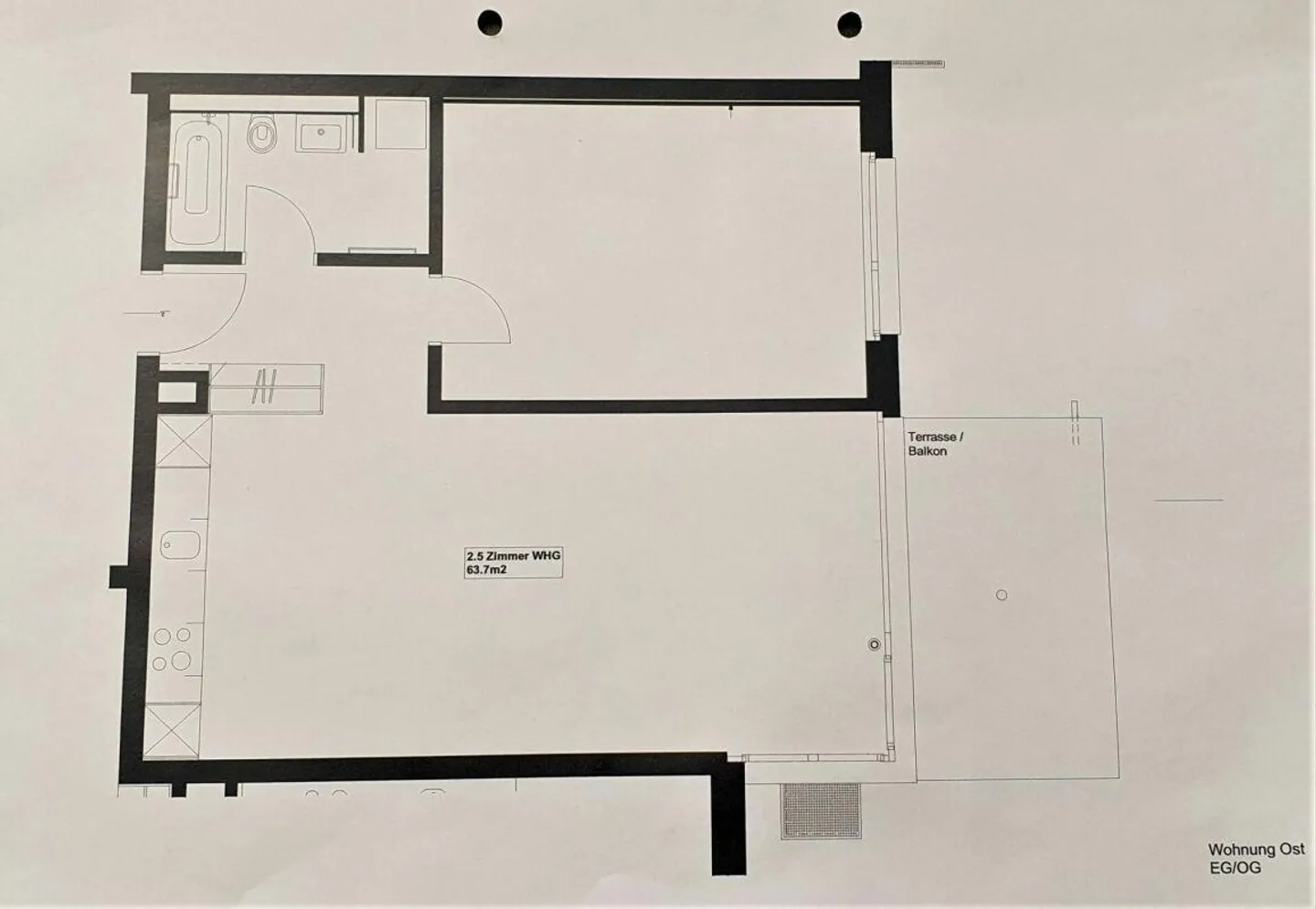
Attractive and modern 2.5-room garden apartment in oberwinterthur
From March 1, 2026, we are renting this beautiful, bright 2.5-room garden apartment on the ground floor at Stadlerstrasse 60 in 8404 Winterthur.
The apartment has the following to offer:
Modern kitchen with dishwasher
- Beautiful tiled floor in the bathroom and parquet floors in the rooms
- Bathroom with bathtub
- Wardrobe in the corridor
- Washing machine / dryer in the apartment
- Cozy seating area
- 1 cellar compartment available
- Outdoor parking space can be rented for an additional CHF 100.00/month
Costs breakdown
- Net rent
- CHF 1’790
- Additional costs
- CHF 190
- Total rent
- CHF 1’790
Property details
- Available from
- By agreement
- Rooms
- 2.5
- Construction year
- 2014
- Living surface
- 64 m²
- Floor
- Ground



