1 / 8

Apartment for rent - Rue Des Tanneurs / Gerbergasse 6, 2502 Biel/Bienne

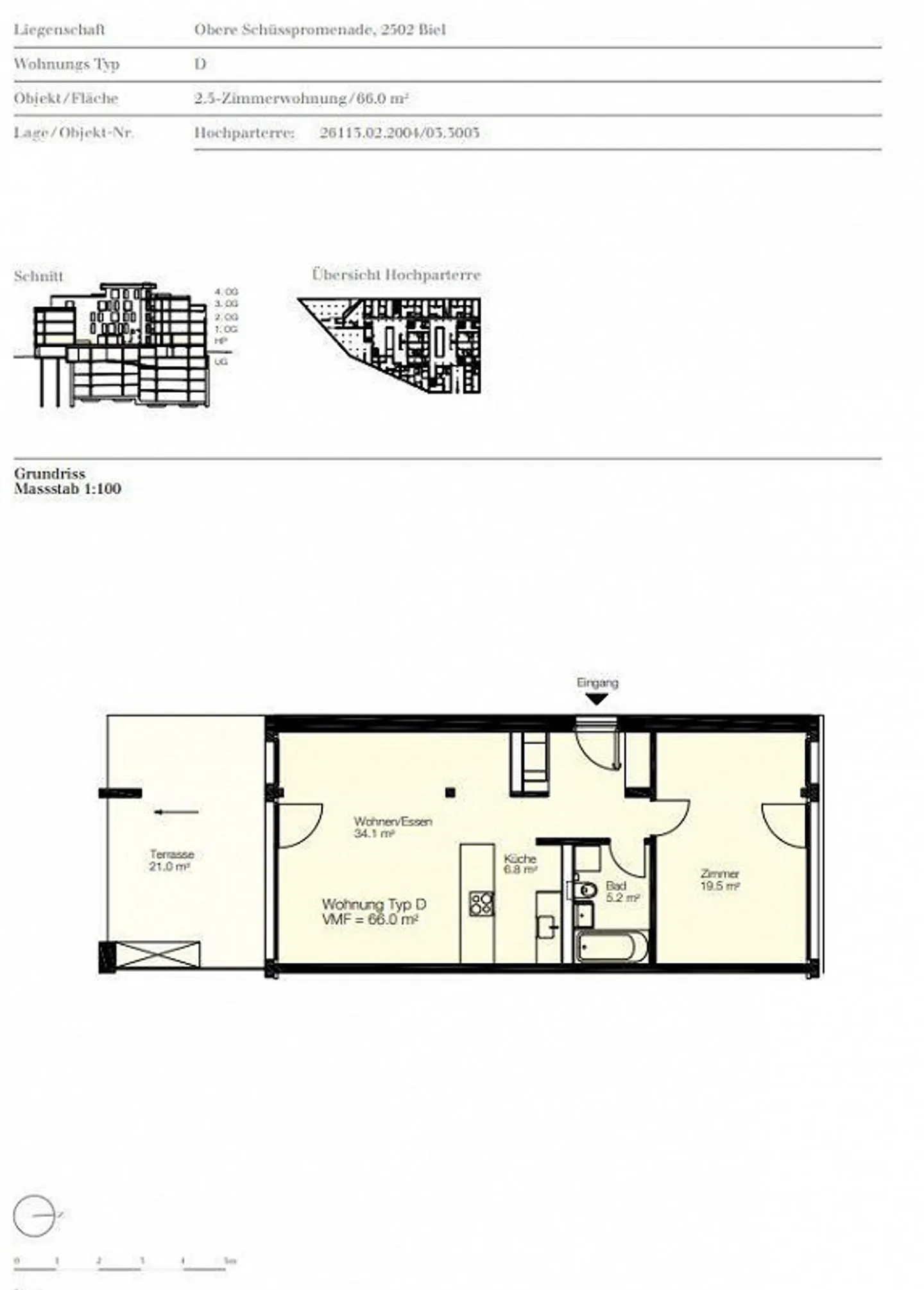
2.5 rooms • 66 m² • Ground floor
CHF 1’520.-
CHF 276 m² / year

Why you'll love this property

Modern open kitchen

Spacious terrace

No deposit required

Arrange a visit

Book a visit with Michèle today!

Michèle Scherwey
Regimo Bern AG
This description has been automatically translated from German.

Rent without deposit - living comfort for connoisseurs

Stylish and with modern living comfort, this apartment is suitable for couples and individuals. The residential building is located near the center of Biel. Public transport with connections in all directions and shopping facilities are in the immediate vicinity.

For your living quality:

- open kitchen with ceramic glass and dishwasher

- bathroom with bath/WC

- own washing machine and dryer

- wardrobes in the corridor

- spacious terrace

- cellar compartment

- elevator

Further details can also be found at...

Property details

Available from
By agreement
Rooms
2.5
Construction year
2012
Living surface
66
Floor
Ground

Features

Garage
Balcony
Unobstructed view
Elevator
Minergie certified
Animal friendly

Agency

Regimo Bern AG
Address:Bern, Thunstrasse 32, 3005
Ref: 26113.02.2004
Online since
14/10/2025
6 days ago

Location

Rue Des Tanneurs / Gerbergasse 6, 2502 Biel/Bienne

Sources