Apartment for rent - Geissfluhstrasse 6, 4500 Solothurn
Why you'll love this property
No deposit required
Glazed balcony view
Close to public transport
Arrange a visit
Book a visit with Artan today!
RENT WITHOUT DEPOSIT - Everything is good in Mühlegut
The Geissfluhstrasse is located in a quiet area in the northernmost part of Solothurn.
The shopping village and the Langendorf train station are within walking distance in just a few minutes. The old town of Solothurn with its numerous specialty shops, diverse restaurants, cafes, and bars, as well as a considerable cultural offering, can also be reached on foot, by bus, or by bicycle.
For your living quality:
- Parquet and tiled floors
- Closed kitchen with ceramic glass cooktop and dishwasher
- Bath...
Costs breakdown
- Net rent
- CHF 1’450
- Additional costs
- CHF 250
- Total rent
- CHF 1’450
Property details
- Available from
- By agreement
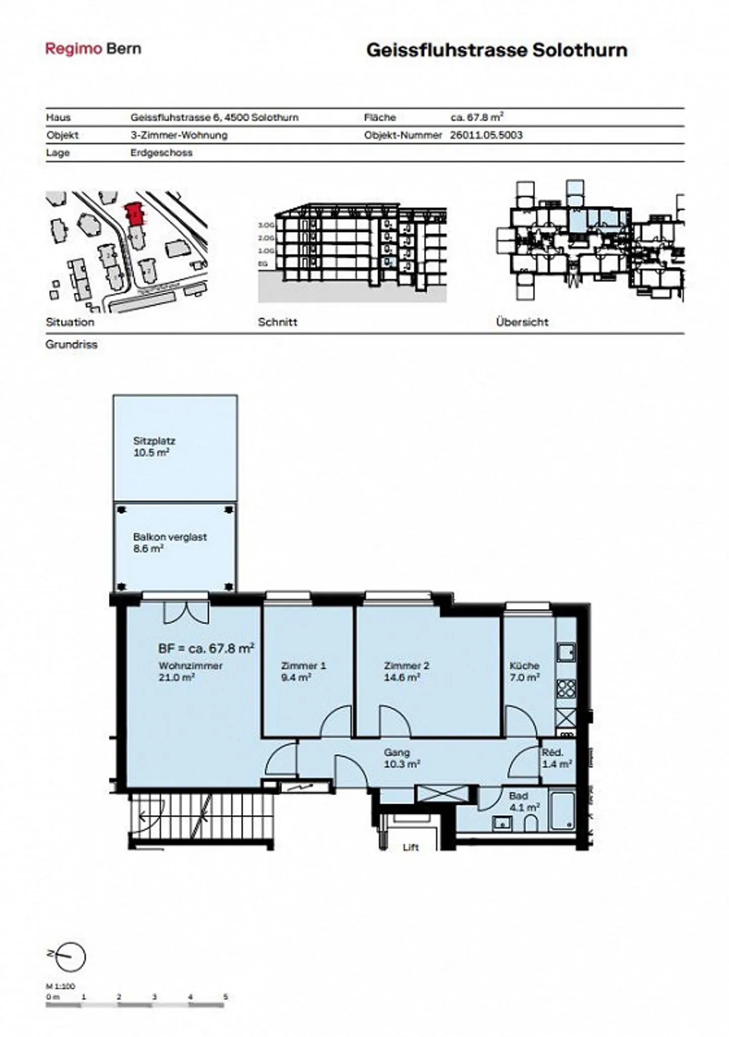
- Rooms
- 3
- Construction year
- 1953
- Renovation year
- 2023
- Living surface
- 67 m²
- Floor
- Ground



