Apartment for rent - Buochserstrasse 6, 6373 Ennetbürgen
Why you'll love this property
Elegant oak parquet flooring
Spacious 14 m² loggia
Eco-friendly energy supply
Arrange a visit
Book a visit with Zimmermann today!
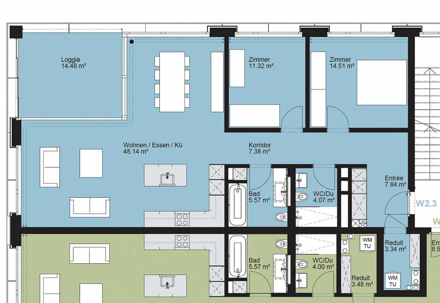
Modern 3.5 Room New Apartment in the Heart of Ennetbürgen
From April 1, 2026, or by arrangement, we are renting a bright and high-quality 3.5-room apartment in a central location in Ennetbürgen. The apartment is located on the 2nd floor of a modern residential and commercial building built in 2021 at Buochserstrasse 6.
On the ground floor is the new parish center of the Catholic parish, while the upper floors house a total of nine stylish rental apartments.
Living with comfort and style
The apartment impresses with a spacious, well-thought-out floor plan ...
Costs breakdown
- Net rent
- CHF 2’150
- Additional costs
- CHF 200
- Total rent
- CHF 2’150
Property details
- Available from
- By agreement
- Rooms
- 3.5
- Construction year
- 2020
- Living surface
- 96 m²
- Floor
- 2nd


