Apartment for rent - Unteräschstrasse 5b, 5103 Möriken AG
Why you'll love this property
Underfloor heating system
Modern kitchen with granite
Loggia with awning
Arrange a visit
Book a visit with Straub today!
GARTENSITZPLATZ | GROSSZÜGIG | IM ZENTRUM
DAS FINANZIELLE
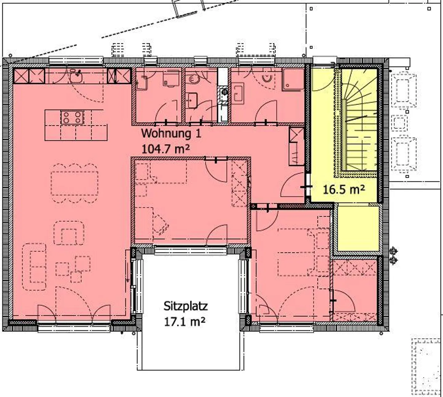
3.5 Zimmerwohnung EG Nr. 1
- Nettomietzins CHF 1'910.00
- Nebenkosten CHF 280.00
- Einstellplätze à CHF 130.00
DAS WICHTIGSTE
- Bodenheizung (individuell regulierbar)
- Kontrollierte Wohnungslüftung mit Wärmerückgewinnung
(eigenes Lüftungsgerät pro Wohnung)
- Lift Untergeschoss - Dachgeschoss
- Entrée mit Garderobenschrank
- Küche mit Granitabdeckung, ausgestattet mit Siemens Apparaten wie Glaskeramikkochfeld, Backofen mit Dampfgarfunktion, Dunstabzug mit Umluft, Geschirrspüler, Kü...
Costs breakdown
- Net rent
- CHF 2’190
- Additional costs
- CHF 280
- Total rent
- CHF 2’190
Property details
- Available from
- By agreement
- Rooms
- 3.5
- Construction year
- 2019
- Living surface
- 105 m²
- Floor
- Ground



