Apartment for rent - Route De Rossens 5, 1726 Farvagny-le-Grand
Why you'll love this property
Open kitchen with island
Loggia with greenery
Bright living room with skylight
Arrange a visit
Book a visit today!
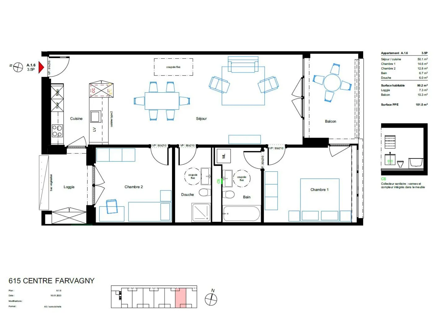
Farvagny - 3.5 room penthouse apartment
For rent in Farvagny: Spacious 3.5 room penthouse apartment
This spacious 3.5 room penthouse apartment, available immediately or by arrangement, is composed as follows:
- Fully equipped open kitchen with island/bar
- 7 m2 loggia with wall cabinet, green area and accessible from the kitchen and the bedroom
- Spacious living room with skylight
- Balcony of over 10 m2 accessible from the living room and the master bedroom
- Master bedroom of approximately 15 m2 with adjoining bathroom including wa...
Costs breakdown
- Net rent
- CHF 1'995
- Additional costs
- CHF 205
- Total rent
- CHF 1'995
Property details
- Available from
- 01.01.1970
- Rooms
- 3.5
- Construction year
- 2023
- Living surface
- 87 m²
- Usable surface
- 87 m²



