Apartment for rent - Mühlegasse 5, 4552 Derendingen
Why you'll love this property
Sunny large balcony
Bright spacious rooms
Close to public transport
Arrange a visit
Book a visit with Flutra today!
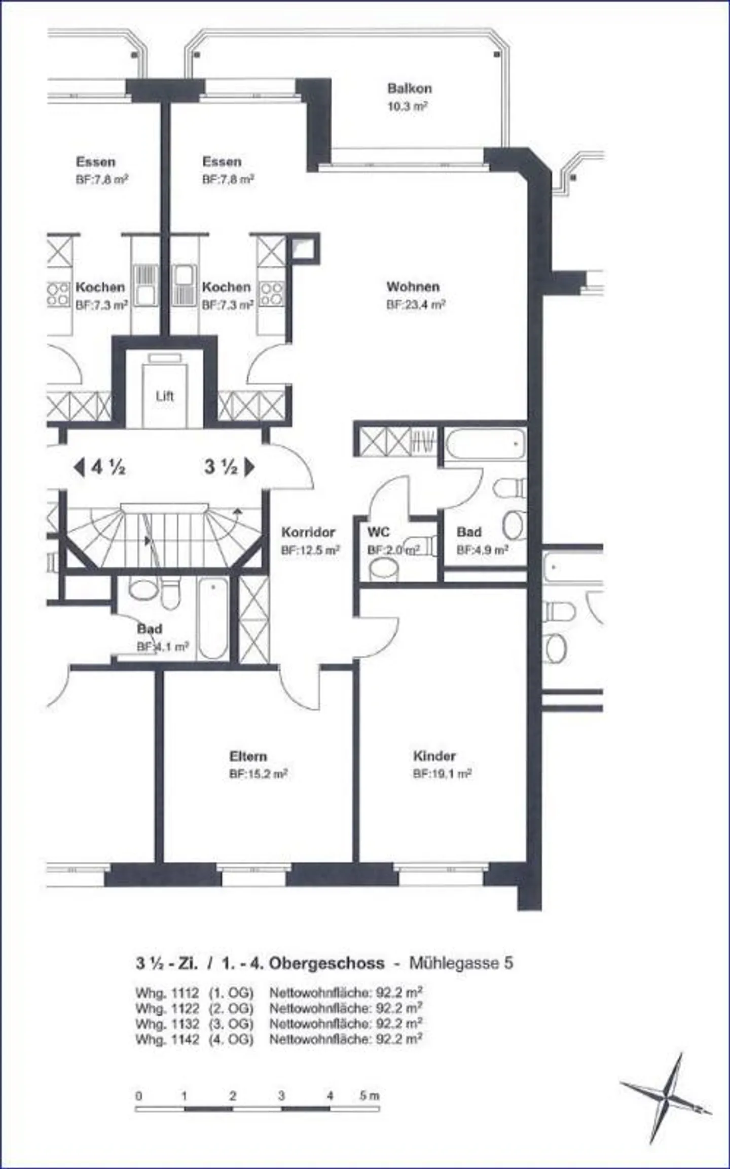
Your dream apartment on the 3rd floor
Your dream apartment on the 3rd floor
Your location advantages
The family-friendly property is located in the beautiful Derendingen. The multi-family house, renovated in 2015, borders the agricultural zone and right behind the large playground, a small stream flows through. Shopping facilities and public transport connections are within a few minutes' walk.
How you live
You can expect a great apartment with:
- Tiled and laminate floors
- Optimal room layout with bright rooms
- Kitchen equipped with a g...
Costs breakdown
- Net rent
- CHF 1’840
- Additional costs
- CHF 190
- Total rent
- CHF 1’840
Property details
- Available from
- By agreement
- Rooms
- 4.5
- Construction year
- 1987
- Living surface
- 103 m²
- Floor
- 3rd



